Jímací stožár pro uložení vedení HVI pod střechou

Pro nasazení na držák jímací tyče do plochy střechy.Jímače jsou opticky přizpůsobené díky uložení vodiče HVI do podpůrné trubky. Vodič HVI prochází trubkou držáku jímací tyče a připevní se k latím/kontralatím na krovech střechy.Výhody:
  • Uložení pod střechou - opticky přizpůsobené řešení
  • Nasazení na držák s pouze jednou viditelnou trubkou
  • Upevnění jímače není ovlivněno zatěží, např. sněhem
Minimální délka vodiče pro objednání je 6 m. Potřebnou délku je třeba zadat při objednání (krok 0,5 m).Na základě výroby potvrzené objednávkou (úprava délky vedení) nemůže být vedení vráceno zpět.

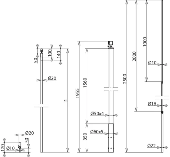
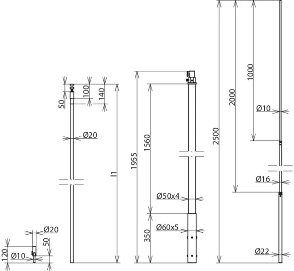
Vodič HVI v podpůrné trubce s jímací tyčí

1 Produkt

Obj. č. 819247 HVI 20 M L6M SR1955 FS2500 DSH GFK AL

GTIN 4013364260900, Číslo celního sazebníku (EU): 85389099, Váha brutto: 7.10 kg, Balící jednotka: 1.00 ks


Vyobrazení

Další informace

Jímací stožár pro uložení vodiče HVI pod střechou
Jímací stožár s vodičem HVI a jímací tyčí pro
uložení pod střechou, k nasazení na držák mezi střešní krokve
Vodič HVI prochází trubkou držáku mezi střešní krokve
a je uložen v oblasti latí/kontralatí.
Podpůrné trubky jsou dimenzovány podle
Dimenzováno podle Eurokódu 1 (DIN EN 1991-1-4 + DIN EN 1991-1-4/NA).
DEHNcon-H vodič HVI v podpůrné trubce, se speciální, uvnitř umístěnou
oblastí koncovky a jímací tyčí Ø 22/16/10 mm, délky 2500 mm
Materiál podpůrné trubky: GFK/Al
Délka podpůrné trubky: 1955 mm
Barva vodiče: černá ●
Materiál vodiče: Cu
Ekvivalent dostatečné vzdálenosti s (pro vzduch): ≤ 75 cm
Minimální objednací délka: 6 m
Max. rychlost nárazového větru: 140 km/h
Norma: DIN IEC/TS 62561-8 (VDE V 0185-561-8)

Výrobek: DEHN
Typ: HVI 20 M L6M SR1955 FS2500 DSH GFK AL
Obj. č.: 819247
nebo rovnocenný.

Certifikáty

 

Technické informace

Materiál podpůrné trubky GFK/ Al
Délka podpůrné trubky 1955 mm
Délka jímací tyče 2500 mm
Vnější průměr trubky GFK 50 mm
Průměr vodiče 20 mm
Barva vodiče černá ●
Materiál vodiče Cu
Ekvivalent dostatečné vzdálenosti s (pro vzduch) ≤ 75 cm
Minimální objednací délka 6 m
Max. rychlost nárazového větru 140 km/h
Norma DIN IEC/TS 62561-8 (VDE V 0185-561-8)

Produkt 819247 byl přidán na seznam.

K seznamu

Produkt 819247 byl přidán do nákupního košíku.


back to top