Telescopic, self-supporting air-termination rods up to 8 m

Self-supporting air-termination rod with hinged three or four-legged stand for protecting larger roof-mounted structures, adjustable to the roof slope up to max. 10°.

The stackable concrete base (weight 17 kg / part no. 102 010) and the plastic base plate (part no. 102 050) have to be ordered separately.

Note: Permissible roof loads have to be considered and checked with the constructor where required.

With HDG steel stand

3 Produkty

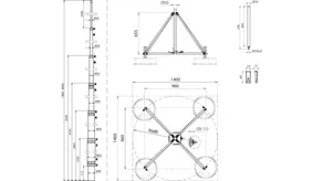
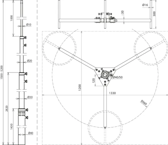
Obj. č. 105711 FS T D40 1.5 5.2M AL DBS RA560 STTZN

GTIN 4013364500976, Číslo celního sazebníku (EU): 85389099, Váha brutto: 13.79 kg, Balící jednotka: 1.00 pc(s)


Vyobrazení

Další informace

Self-supporting air-termination rod; height: 5200 mm
Telescopic, self-supporting air-termination rods
with hinged tripod
For protecting large roof-mounted structures
Adjustable to the roof slope up to max. 10 degrees
The air-termination rods are dimensioned to Eurocode1
(DIN EN 1991-1-4 + DIN EN 1991-1-4/NA)
for a max. gust wind speed
of 149 km/h to 183 km/h.
Depending on the extended air-termination tip and quantity of concrete bases
For erection with concrete bases (weight 17 kg)
Stackable concrete base (part no. 102 010)
Plastic base plate (part no. 102 050)
must be ordered separately
Height: 5200 mm
Radius: 560 mm
Space required for stand: 1210 x 1340 mm
Stand material: HDG steel (St/tZn)
Air-termination mast material: Al

Brand: DEHN
Type: FS T D40 1.5 5.2M AL DBS RA560 STTZN
Part No.: 105711
or equivalent.

 

Technické informace

Height 5200 mm
Air-termination tip (Ø length) 10-1000 mm
Termination mast (Ø length) 40/30/20-4200 mm
Radius 560 mm
Space required for stand 1210 x 1340 mm
Stand material HDG steel (St/tZn)
Air-termination mast material Al
Standard DIN EN 62561-(1+2)

Produkt 105711 byl přidán na seznam.

K seznamu

Produkt 105711 byl přidán do nákupního košíku.

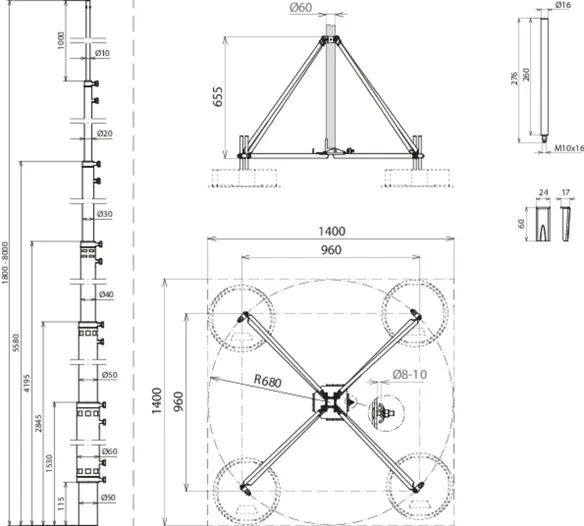
Obj. č. 105713 FS T D50 1.6 6.5M AL DBS RA1435 STTZN

GTIN 4013364501041, Číslo celního sazebníku (EU): 85389099, Váha brutto: 26.32 kg, Balící jednotka: 1.00 pc(s)


Vyobrazení

Další informace

Self-supporting air-termination rod; height: 6500 mm
Self-supporting, telescopic air-termination rods
With bracing and hinged tripod
For protecting large roof-mounted structures
Adjustable to the roof slope up to max. 10 degrees
The air-termination rods are dimensioned to Eurocode 1
(DIN EN 1991-1-4 + DIN EN 1991-1-4/NA)
Dimensioned for a max. gust wind speed
of 149 km/h to 189 km/h
Depending on the extended air-termination tip and quantity of concrete bases
For erection with concrete bases (weight 17 kg)
Stackable concrete base (part no. 102 010)
Plastic base plate (part no. 102 050)
must be ordered separately
Height: 6500 mm
Radius: 1435 mm
Space required for stand: 2850 x 2530 mm
Stand material: HDG steel (St/tZn)
Air-termination mast material: Al

Brand: DEHN
Type: FS T D50 1.6 6.5M AL DBS RA1435 STTZN
Part No.: 105713
or equivalent.

 

Technické informace

Height 6500 mm
Air-termination tip (Ø length) 10-1000 mm
Termination mast (Ø length) 50/40/30/20-5500 mm
Radius 1435 mm
Space required for stand 2850 x 2530 mm
Stand material HDG steel (St/tZn)
Air-termination mast material Al
Standard DIN EN 62561-(1+2)

Produkt 105713 byl přidán na seznam.

K seznamu

Produkt 105713 byl přidán do nákupního košíku.

Obj. č. 105716 FS T D50 1.8 8.0M AL DBS RA1435 STTZN

GTIN 4013364501072, Číslo celního sazebníku (EU): 85389099, Váha brutto: 29.28 kg, Balící jednotka: 1.00 pc(s)


Vyobrazení

Další informace

Self-supporting air-termination rod; height: 8000 mm
Self-supporting, telescopic air-termination rods
With bracing and hinged tripod
For protecting large roof-mounted structures
Adjustable to the roof slope up to max. 10 degrees
The air-termination rods are dimensioned to Eurocode 1
(DIN EN 1991-1-4 + DIN EN 1991-1-4/NA)
Dimensioned for a max. gust wind speed
of 147 km/h to 149 km/h
Depending on the extended air-termination tip and quantity of concrete bases
For erection with concrete bases (weight 17 kg)
Stackable concrete base (part no. 102 010)
Plastic base plate (part no. 102 050)
must be ordered separately
Height: 8000 mm
Radius: 1435 mm
Space required for stand: 2850 x 2530 mm
Stand material: HDG steel (St/tZn)
Air-termination mast material: Al

Brand: DEHN
Type: FS T D50 1.8 8.0M AL DBS RA1435 STTZN
Part No.: 105716
or equivalent.

Certifikáty

 

Technické informace

Height 8000 mm
Air-termination tip (Ø length) 10-1000 mm
Termination mast (Ø length) 50/60/50/40/30/20-7000 mm
Radius 1435 mm
Space required for stand 2850 x 2530 mm
Stand material HDG steel (St/tZn)
Air-termination mast material Al
Standard DIN EN 62561-(1+2)

Produkt 105716 byl přidán na seznam.

K seznamu

Produkt 105716 byl přidán do nákupního košíku.


With stainless steel stand

4 Produkty

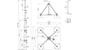
Obj. č. 105710 FS T D40 1.5 5.2M AL DBS RA680 V2A

GTIN 4013364500969, Číslo celního sazebníku (EU): 85389099, Váha brutto: 12.58 kg, Balící jednotka: 1.00 pc(s)


Vyobrazení

Další informace

Self-supporting air-termination rod; height: 5200 mm
Self-supporting, telescopic air-termination rods
With tripod, small, StSt (hinged design)
For protecting large roof-mounted structures
With adapter set for diameter change Ø50 to Ø40mm
Compensation for the roof slope angle up to max. 10°
The air-termination rods are dimensioned to Eurocode 1
(DIN EN 1991-1-4 + DIN EN 1991-1-4/NA)
Dimensioned for a max. gust wind speed
of 149 km/h to 191 km/h
Depending on the extended air-termination tip and quantity of concrete bases
For erection with concrete bases (weight 17 kg)
Base holder set (part no. 107 396)
Stackable concrete base (part no. 102 010)
Plastic base plate (part no. 102 050)
must be ordered separately
Height: 5200 mm
Radius: 680 mm
Space required for stand: 1400 x 1600 mm
Stand material: StSt
Air-termination mast material: Al

Brand: DEHN
Type: FS T D40 1.5 5.2M AL DBS RA680 V2A
Part No.: 105710
or equivalent.

 

Technické informace

Height 5200 mm
Air-termination tip (Ø length) 10-1000 mm
Termination mast (Ø length) 40/30/20-4200 mm
Radius 680 mm
Space required for stand 1400 x 1600 mm
Stand material StSt
Air-termination mast material Al
Standard DIN EN 62561-(1+2)

Produkt 105710 byl přidán na seznam.

K seznamu

Produkt 105710 byl přidán do nákupního košíku.

Obj. č. 105712 FS T D50 1.6 6.5M AL VBS RA680 V2A

GTIN 4013364500983, Číslo celního sazebníku (EU): 85389099, Váha brutto: 16.77 kg, Balící jednotka: 1.00 pc(s)


Vyobrazení

Další informace

Self-supporting air-termination rod; height: 6500 mm
Self-supporting, telescopic air-termination rods
With four-legged stand, small, StSt (hinged design)
For protecting large roof-mounted structures
Compensation for the roof slope angle up to max. 10°
The air-termination rods are dimensioned to Eurocode 1
(DIN EN 1991-1-4 + DIN EN 1991-1-4/NA)
Dimensioned for a max. gust wind speed
of 149 km/h to 189 km/h
Depending on the extended air-termination tip and quantity of concrete bases
For erection with concrete bases (weight 17 kg)
Base holder set (part no. 107 396)
Stackable concrete base (part no. 102 010)
Plastic base plate (part no. 102 050)
must be ordered separately
Height: 6500 mm
Radius: 680 mm
Space required for stand: 1400 x 1400 mm
Stand material: StSt
Air-termination mast material: Al

Brand: DEHN
Type: FS T D50 1.6 6.5M AL VBS RA680 V2A
Part No.: 105712
or equivalent.

 

Technické informace

Height 6500 mm
Air-termination tip (Ø length) 10-1000 mm
Termination mast (Ø length) 50/40/30/20-5500 mm
Radius 680 mm
Space required for stand 1400 x 1400 mm
Stand material StSt
Air-termination mast material Al
Standard DIN EN 62561-(1+2)

Produkt 105712 byl přidán na seznam.

K seznamu

Produkt 105712 byl přidán do nákupního košíku.

Obj. č. 105714 FS T D50 1.8 8.0M AL VBS RA680 V2A

GTIN 4013364501058, Číslo celního sazebníku (EU): 85389099, Váha brutto: 19.95 kg, Balící jednotka: 1.00 pc(s)


Vyobrazení

Další informace

Self-supporting air-termination rod; height: 8000 mm
Self-supporting, telescopic air-termination rods
With four-legged stand, small, StSt (hinged design)
For protecting large roof-mounted structures
Compensation for the roof slope angle up to max. 10°
The air-termination rods are dimensioned to Eurocode 1
(DIN EN 1991-1-4 + DIN EN 1991-1-4/NA)
Dimensioned for a max. gust wind speed
of 140 km/h to 150 km/h
Depending on the extended air-termination tip and quantity of concrete bases
For erection with concrete bases (weight 17 kg)
Base holder set (part no. 107 396)
Stackable concrete base (part no. 102 010)
Plastic base plate (part no. 102 050)
must be ordered separately
Height: 8000 mm
Radius: 680 mm
Space required for stand: 1400 x 1400 mm
Stand material: StSt
Air-termination mast material: Al

Brand: DEHN
Type: FS T D50 1.8 8.0M AL VBS RA680 V2A
Part No.: 105714
or equivalent.

 

Technické informace

Height 8000 mm
Air-termination tip (Ø length) 10-1000 mm
Termination mast (Ø length) 50/60/50/40/30/20-7000 mm
Radius 680 mm
Space required for stand 1400 x 1400 mm
Stand material StSt
Air-termination mast material Al
Standard DIN EN 62561-(1+2)

Produkt 105714 byl přidán na seznam.

K seznamu

Produkt 105714 byl přidán do nákupního košíku.

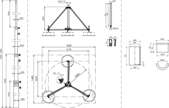
Obj. č. 105715 FS T D50 1.8 8.0M AL VBS RA1330 V2A

GTIN 4013364501065, Číslo celního sazebníku (EU): 85389099, Váha brutto: 30.45 kg, Balící jednotka: 1.00 pc(s)


Vyobrazení

Další informace

Self-supporting air-termination rod; height: 8000 mm
Self-supporting, telescopic air-termination rods
With four-legged stand, large, StSt, (hinged design)
For protecting large roof-mounted structures
Compensation for the roof slope angle up to max. 10°
The air-termination rods are dimensioned to Eurocode 1
(DIN EN 1991-1-4 + DIN EN 1991-1-4/NA)
Dimensioned for a max. gust wind speed
of 155 km/h to 170 km/h
Depending on the extended air-termination tip and quantity of concrete bases
For erection with concrete bases (weight 17 kg)
Base holder set (part no. 107 396)
Stackable concrete base (part no. 102 010)
Plastic base plate (part no. 102 050)
must be ordered separately
Height: 8000 mm
Radius: 1330 mm
Space required for stand: 2300 x 2300 mm
Stand material: StSt
Air-termination mast material: Al

Brand: DEHN
Type: FS T D50 1.8 8.0M AL VBS RA1330 V2A
Part No.: 105715
or equivalent.

 

Technické informace

Height 8000 mm
Air-termination tip (Ø length) 10-1000 mm
Termination mast (Ø length) 50/60/50/40/30/20-7000 mm
Radius 1330 mm
Space required for stand 2300 x 2300 mm
Stand material StSt
Air-termination mast material Al
Standard DIN EN 62561-(1+2)

Produkt 105715 byl přidán na seznam.

K seznamu

Produkt 105715 byl přidán do nákupního košíku.


back to top