Supporting tubes for HVI light plus Conductor

Discreet supporting tube with integrated EB spring element for the applications
– Wall mounting
– Inside and outside routing with installation in an n-legged stand (with/without side outlet)
– Installation on metal roof/roof rafter bracket

Without side outlet

Supporting tube with internal sealing end / EB spring element without side outlet. Air-termination tip, StSt, Ø10 mm, length 500/1000 mm.

4 Produkty

Obj. č. 105672 SR D40 1600 FSP500 HVI LI PL GFK AL V2A

GTIN 4013364494473, Číslo celního sazebníku (EU): 85389099, Váha brutto: 2.53 kg, Balící jednotka: 1.00 pc(s)


Vyobrazení

Další informace

Supporting tube for HVI light plus Conductor with air-termination tip, length: 2,100 mm, GRP/Al
GRP/Al supporting tubes with internal sealing end
and EB spring element for the HVI light plus Conductor
for maintaining the separation distance to electrically
conductive parts as per DIN EN 62305 (VDE 0185-305-3).
The supporting tubes are dimensioned to Eurocode 1
(DIN EN 1991-1-4 + DINEN 1991-1-4/NA).
Insulating clearance made of glass-fibre reinforced plastic (GRP)
Material factor km = 0.7
Light grey colour, UV-stabilised, one-piece
Combined with air-termination tip, Ø10 mm, length 500 mm, StSt
Material of supporting tube: GRP / Al
Length of supporting tube: 1600 mm
Transport length: 1600 mm
Outside diameter Ø : 40 mm
Length of insulating clearance: 1230 mm
Standard: DIN IEC/TS 62561-8 (VDE V 0185-561-8)

Brand: DEHN
Type: SR D40 1600 FSP500 HVI LI PL GFK AL V2A
Part No.: 105672
or equivalent.

Certifikáty

 

Technické informace

Length of air-termination tip 500 mm
Material of supporting tube GRP / Al
Length of supporting tube 1600 mm
Transport length 1600 mm
Outside diameter Ø 40 mm
Length of insulating clearance 1230 mm
Standard DIN IEC/TS 62561-8 (VDE V 0185-561-8)

Produkt 105672 byl přidán na seznam.

K seznamu

Produkt 105672 byl přidán do nákupního košíku.

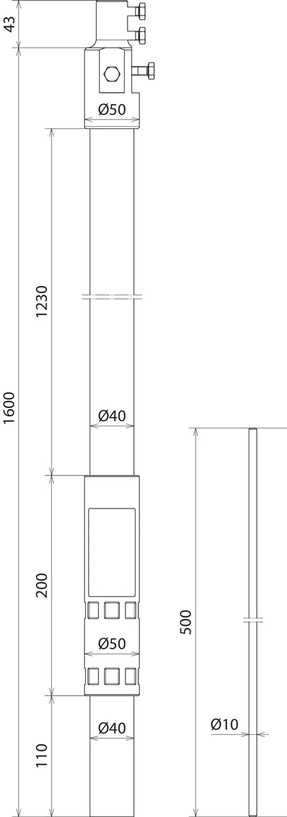
Obj. č. 105673 SR D40 1600 FSP1000 HVI LI PL GFK AL V2A

GTIN 4013364494497, Číslo celního sazebníku (EU): 85389099, Váha brutto: 2.80 kg, Balící jednotka: 1.00 pc(s)


Vyobrazení

Další informace

Supporting tube for HVI light plus Conductor with air-termination tip, length: 2,600 mm, GRP/Al
GRP/Al supporting tubes with internal sealing end
and EB spring element for the HVI light plus Conductor
for maintaining the separation distance to electrically
conductive parts as per DIN EN 62305 (VDE 0185-305-3).
The supporting tubes are dimensioned to Eurocode 1
(DIN EN 1991-1-4 + DINEN 1991-1-4/NA).
Insulating clearance made of glass-fibre reinforced plastic (GRP)
Material factor km = 0.7
Light grey colour, UV-stabilised, one-piece
Combined with air-termination tip, Ø10 mm, length 1000 mm, StSt
Material of supporting tube: GRP / Al
Length of supporting tube: 1600 mm
Transport length: 1600 mm
Outside diameter Ø : 40 mm
Length of insulating clearance: 1230 mm
Standard: DIN IEC/TS 62561-8 (VDE V 0185-561-8)

Brand: DEHN
Type: SR D40 1600 FSP1000 HVI LI PL GFK AL V2A
Part No.: 105673
or equivalent.

Certifikáty

 

Technické informace

Length of air-termination tip 1000 mm
Material of supporting tube GRP / Al
Length of supporting tube 1600 mm
Transport length 1600 mm
Outside diameter Ø 40 mm
Length of insulating clearance 1230 mm
Standard DIN IEC/TS 62561-8 (VDE V 0185-561-8)

Produkt 105673 byl přidán na seznam.

K seznamu

Produkt 105673 byl přidán do nákupního košíku.

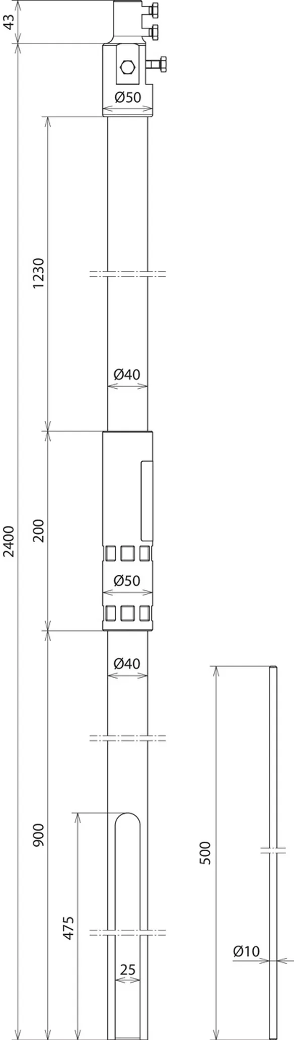
Obj. č. 105674 SR D40 2400 FSP500 HVI LI PL GFK AL V2A

GTIN 4013364494503, Číslo celního sazebníku (EU): 85389099, Váha brutto: 3.53 kg, Balící jednotka: 1.00 pc(s)


Vyobrazení

Další informace

Supporting tube for HVI light plus Conductor with air-termination tip, length: 2,900 mm, GRP/Al
GRP/Al supporting tubes with internal sealing end
and EB spring element for the HVI light plus Conductor
for maintaining the separation distance to electrically
conductive parts as per DIN EN 62305 (VDE 0185-305-3).
The supporting tubes are dimensioned to Eurocode 1
(DIN EN 1991-1-4 + DINEN 1991-1-4/NA).
Insulating clearance made of glass-fibre reinforced plastic (GRP)
Material factor km = 0.7
Light grey colour, UV-stabilised, one-piece
Combined with air-termination tip, Ø10 mm, length 500 mm, StSt
Material of supporting tube: GRP / Al
Length of supporting tube: 2400 mm
Transport length: 2400 mm
Outside diameter Ø : 40 mm
Length of insulating clearance: 1230 mm
Standard: DIN IEC/TS 62561-8 (VDE V 0185-561-8)

Brand: DEHN
Type: SR D40 2400 FSP500 HVI LI PL GFK AL V2A
Part No.: 105674
or equivalent.

Certifikáty

 

Technické informace

Length of air-termination tip 500 mm
Material of supporting tube GRP / Al
Length of supporting tube 2400 mm
Transport length 2400 mm
Outside diameter Ø 40 mm
Length of insulating clearance 1230 mm
Standard DIN IEC/TS 62561-8 (VDE V 0185-561-8)

Produkt 105674 byl přidán na seznam.

K seznamu

Produkt 105674 byl přidán do nákupního košíku.

Obj. č. 105675 SR D40 2400 FSP1000 HVI LI PL GFK AL V2A

GTIN 4013364494510, Číslo celního sazebníku (EU): 85389099, Váha brutto: 3.80 kg, Balící jednotka: 1.00 pc(s)


Vyobrazení

Další informace

Supporting tube for HVI light plus Conductor with air-termination tip, length: 3,400 mm, GRP/Al
GRP/Al supporting tubes with internal sealing end
and EB spring element for the HVI light plus Conductor
for maintaining the separation distance to electrically
conductive parts as per DIN EN 62305 (VDE 0185-305-3).
The supporting tubes are dimensioned to Eurocode 1
(DIN EN 1991-1-4 + DINEN 1991-1-4/NA).
Insulating clearance made of glass-fibre reinforced plastic (GRP)
Material factor km = 0.7
Light grey colour, UV-stabilised, one-piece
Combined with air-termination tip, Ø10 mm, length 1000 mm, StSt
Material of supporting tube: GRP / Al
Length of supporting tube: 2400 mm
Transport length: 2400 mm
Outside diameter Ø : 40 mm
Length of insulating clearance: 1230 mm
Standard: DIN IEC/TS 62561-8 (VDE V 0185-561-8)

Brand: DEHN
Type: SR D40 2400 FSP1000 HVI LI PL GFK AL V2A
Part No.: 105675
or equivalent.

Certifikáty

 

Technické informace

Length of air-termination tip 1000 mm
Material of supporting tube GRP / Al
Length of supporting tube 2400 mm
Transport length 2400 mm
Outside diameter Ø 40 mm
Length of insulating clearance 1230 mm
Standard DIN IEC/TS 62561-8 (VDE V 0185-561-8)

Produkt 105675 byl přidán na seznam.

K seznamu

Produkt 105675 byl přidán do nákupního košíku.


With side outlet

Supporting tube with internal sealing end / EB spring element with side outlet | air-termination tip, StSt, Ø10 mm, length: 500 / 1,000 mm.

2 Produkty

Obj. č. 105677 SR D40 2400 FSP500 SA HVI LI PL GFK AL

GTIN 4013364500044, Číslo celního sazebníku (EU): 85389099, Váha brutto: 3.35 kg, Balící jednotka: 1.00 pc(s)


Vyobrazení

Další informace

Supporting tube for HVI light plus Conductor with air-termination tip
and side outlet, length: 2,900 mm, GRP/Al
GRP/Al supporting tubes with internal sealing end
and EB spring element for the HVI light plus Conductor
for maintaining the separation distance to electrically
conductive parts as per DIN EN 62305 (VDE 0185-305-3).
The supporting tubes are dimensioned to Eurocode 1
(DIN EN 1991-1-4 + DINEN 1991-1-4/NA).
Insulating clearance made of glass-fibre reinforced plastic (GRP)
Material factor km = 0.7
Light grey colour, UV-stabilised, one-piece
Combined with air-termination tip, Ø10 mm, length 500 mm, StSt
Material of supporting tube: GRP / Al
Length of supporting tube: 2400 mm
Transport length: 2400 mm
Outside diameter Ø : 40 mm
Length of insulating clearance: 1230 mm
Standard: DIN IEC/TS 62561-8 (VDE V 0185-561-8)

Brand: DEHN
Type: SR D40 2400 FSP500 SA HVI LI PL GFK AL
Part No.: 105677
or equivalent.

Certifikáty

 

Technické informace

Length of air-termination tip 500 mm
Material of supporting tube GRP / Al
Length of supporting tube 2400 mm
Transport length 2400 mm
Outside diameter Ø 40 mm
Length of insulating clearance 1230 mm
Standard DIN IEC/TS 62561-8 (VDE V 0185-561-8)

Produkt 105677 byl přidán na seznam.

K seznamu

Produkt 105677 byl přidán do nákupního košíku.

Obj. č. 105678 SR D40 2400 FSP1000 SA HVI LI PL GFK AL

GTIN 4013364500051, Číslo celního sazebníku (EU): 85389099, Váha brutto: 3.62 kg, Balící jednotka: 1.00 pc(s)


Vyobrazení

Další informace

Supporting tube for HVI light plus Conductor with air-termination tip
and side outlet, length: 3,400 mm, GRP/Al
GRP/Al supporting tubes with internal sealing end
and EB spring element for the HVI light plus Conductor
for maintaining the separation distance to electrically
conductive parts as per DIN EN 62305 (VDE 0185-305-3).
The supporting tubes are dimensioned to Eurocode 1
(DIN EN 1991-1-4 + DINEN 1991-1-4/NA).
Insulating clearance made of glass-fibre reinforced plastic (GRP)
Material factor km = 0.7
Light grey colour, UV-stabilised, one-piece
Combined with air-termination tip, Ø10 mm, length 1000 mm, StSt
Material of supporting tube: GRP / Al
Length of supporting tube: 2400 mm
Transport length: 2400 mm
Outside diameter Ø : 40 mm
Length of insulating clearance: 1230 mm
Standard: DIN IEC/TS 62561-8 (VDE V 0185-561-8)

Brand: DEHN
Type: SR D40 2400 FSP1000 SA HVI LI PL GFK AL
Part No.: 105678
or equivalent.

Certifikáty

 

Technické informace

Length of air-termination tip 1000 mm
Material of supporting tube GRP / Al
Length of supporting tube 2400 mm
Transport length 2400 mm
Outside diameter Ø 40 mm
Length of insulating clearance 1230 mm
Standard DIN IEC/TS 62561-8 (VDE V 0185-561-8)

Produkt 105678 byl přidán na seznam.

K seznamu

Produkt 105678 byl přidán do nákupního košíku.


For metal roof/roof rafter bracket

Supporting tube with internal sealing end / EB spring element for sub-roof installation. Air-termination tip, StSt, Ø10 mm, length 1000 mm.

1 Produkt

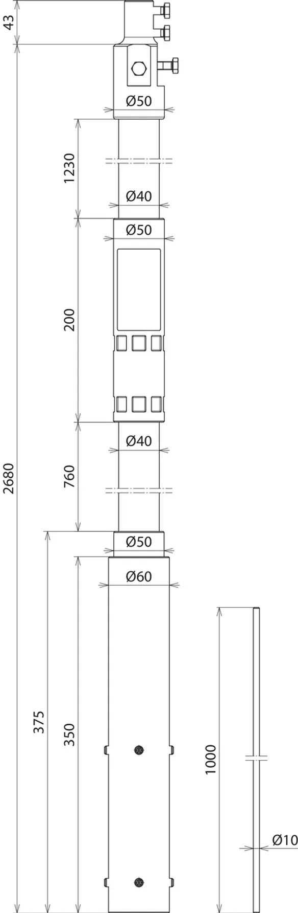
Obj. č. 105688 SR D40 2680 FSP1000 DSH GFK AL V2A

GTIN 4013364499775, Číslo celního sazebníku (EU): 85389099, Váha brutto: 4.83 kg, Balící jednotka: 1.00 pc(s)


Vyobrazení

Další informace

Supporting tube for HVI light plus Conductor with air-termination tip, length: 3,680 mm, GRP/Al
GRP/Al supporting tubes with internal sealing end
and EB spring element for the HVI light plus Conductor
for maintaining the separation distance to electrically
conductive parts as per DIN EN 62305 (VDE 0185-305-3).
The supporting tubes are dimensioned to Eurocode 1
(DIN EN 1991-1-4 + DINEN 1991-1-4/NA).
Insulating clearance made of glass-fibre reinforced plastic (GRP)
Material factor km = 0.7
Light grey colour, UV-stabilised, one-piece
Combined with air-termination tip, Ø10 mm, length 1000 mm, StSt
Material of supporting tube: GRP / Al
Length of supporting tube: 2680 mm
Transport length: 2680 mm
Outside diameter Ø : 40 mm
Length of insulating clearance: 1230 mm
Standard: DIN IEC/TS 62561-8 (VDE V 0185-561-8)

Brand: DEHN
Type: SR D40 2680 FSP1000 DSH GFK AL V2A
Part No.: 105688
or equivalent.

Certifikáty

 

Technické informace

Length of air-termination tip 1000 mm
Material of supporting tube GRP / Al
Length of supporting tube 2680 mm
Transport length 2680 mm
Outside diameter Ø 40 mm
Length of insulating clearance 1230 mm
Standard DIN IEC/TS 62561-8 (VDE V 0185-561-8)

Produkt 105688 byl přidán na seznam.

K seznamu

Produkt 105688 byl přidán do nákupního košíku.


back to top