Components for Buildings with Thatched Roof

Lightning protection system components for buildings with thatched roofs.
Air-termination conductors on thatched roofs have to be installed at a distance to the roof, e.g. on isolating supports. Certain distances also have to be kept to the eaves.
The span width for ridge conductors is approx. 15 m and for down conductors approx. 10 m without additional supports. Span stakes have to be fastened to the roof construction (rafters and crossbars) using anchor bolts and flat washers.

Today an isolated (HVI) lightning protection system is often used as an external lightning protection system for buildings with thatched roofs.

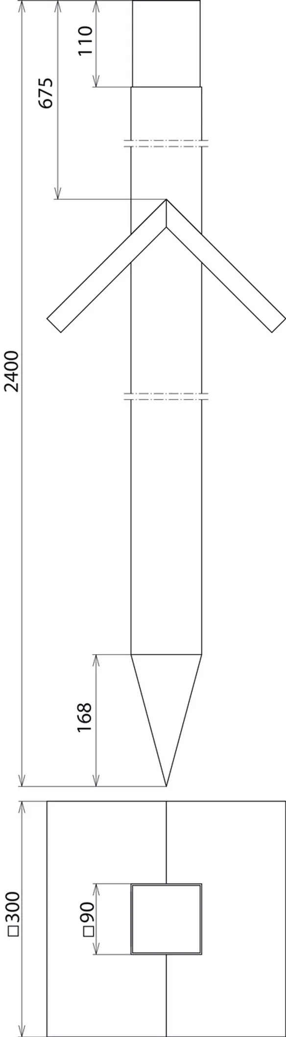
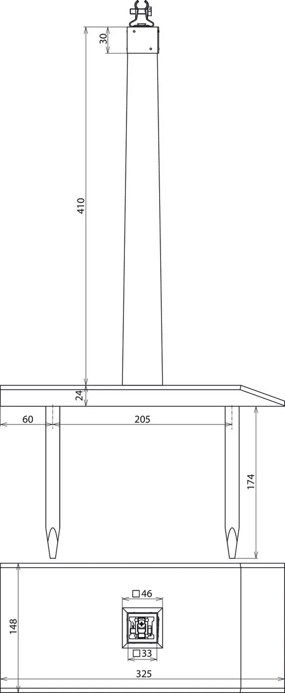
Wooden stake

With rain shelter, suitable for clamping cap (Part No. 146 309).

1 Produkt

Obj. č. 145241 HP 90X90 2400 EHI

GTIN 4013364022584, Číslo celního sazebníku (EU): 44219999, Váha brutto: 52.00 kg, Balící jednotka: 1.00 pc(s)


Vyobrazení

Další informace

Wooden stake with rain shelter
Wooden stake with rain shelter, for installation of the air-termination system on thatched roofs,
suitable for clamping cap (Part No. 146 309)
Material: oak (impregnated)
Dimensions: 90 x 90 x 2400 mm

Brand: DEHN
Type: HP 90X90 2400 EHI
Part No.: 145241
or equivalent.

 

Technické informace

Material oak (impregnated)
Dimensions (l x w x h) 90 x 90 x 2400 mm

Produkt 145241 byl přidán na seznam.

K seznamu

Produkt 145241 byl přidán do nákupního košíku.


Clamping cap

Fixed to wooden stakes (Part No. 145 241).
With air-termination tip (length 300 mm, Ø10 mm, StSt).

1 Produkt

Obj. č. 146309 SPK 100X100 FSP10 300 7.10 V2A

GTIN 4013364072398, Číslo celního sazebníku (EU): 85389099, Váha brutto: 864.20 g, Balící jednotka: 1.00 pc(s)


Vyobrazení

Další informace

Clamping cap fixed to wooden stakes
Clamping cap fixed to wooden stakes (Part No. 145 241)
with air-termination tip (length 300 mm, Ø10 mm, StSt (V2A))
Material: StSt
Support Rd: 7-10 mm

Brand: DEHN
Type: SPK 100X100 FSP10 300 7.10 V2A
Part No.: 146309
or equivalent.

Certifikáty

 

Technické informace

Material StSt
Support Rd 7-10 mm

Produkt 146309 byl přidán na seznam.

K seznamu

Produkt 146309 byl přidán do nákupního košíku.


Roof conductor support

With conductor holder.

1 Produkt

Obj. č. 240000 DLS 6.10 134X300X598 EHI

GTIN 4013364022614, Číslo celního sazebníku (EU): 44219999, Váha brutto: 1.50 kg, Balící jednotka: 1.00 pc(s)


Vyobrazení

Další informace

Roof conductor support with conductor holder
Support for roof conductors for installation of air-termination/down conductors on thatched roofs in the direction of the eaves
Conductor holder with claw made of stainless steel (Part No. 273 019) included
Material: oak (impregnated)
Dimensions: 134 x 300 x 598 mm
Support Rd: 6-10 mm

Brand: DEHN
Type: DLS 6.10 134X300X598 EHI
Part No.: 240000
or equivalent.

Certifikáty

 

Technické informace

Material oak (impregnated)
Dimensions (l x w x h) 134 x 300 x 598 mm
Support Rd 6-10 mm

Produkt 240000 byl přidán na seznam.

K seznamu

Produkt 240000 byl přidán do nákupního košíku.


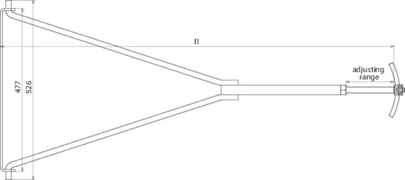
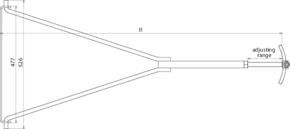
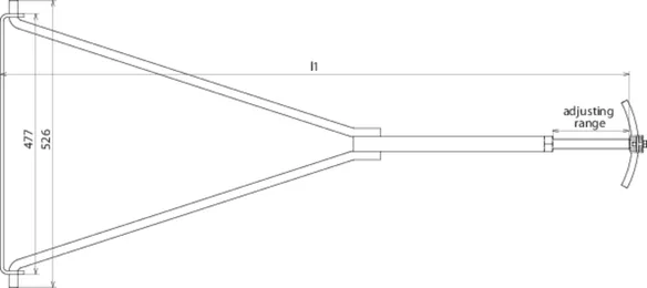
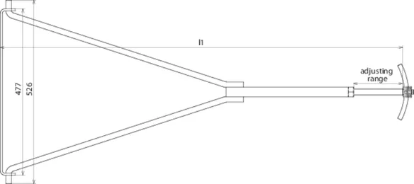
Eaves supports St/tZn / StSt

For spanning conductors/cables over it.
Distance between the wall and conductors is adjustable.

4 Produkty

Obj. č. 239000 TS 7.10 V1.0 1.15M STTZN

GTIN 4013364022621, Číslo celního sazebníku (EU): 85389099, Váha brutto: 4.70 kg, Balící jednotka: 1.00 pc(s)


Vyobrazení

Další informace

Eaves support for spanning conductors / cables over it, St/tZn
Eaves support for spanning conductors over it, distance between the wall and conductors is adjustable
Material: St/tZn
Support Rd: 7-10 mm

Brand: DEHN
Type: TS 7.10 V1.0 1.15M STTZN
Part No.: 239000
or equivalent.

Certifikáty

 

Technické informace

Material St/tZn
Adjustable range (l1) 1.05-1.20 m
Support Rd 7-10 mm

Produkt 239000 byl přidán na seznam.

K seznamu

Produkt 239000 byl přidán do nákupního košíku.

Obj. č. 239001 TS 7.10 V1.25 1.40M STTZN

GTIN 4013364022638, Číslo celního sazebníku (EU): 85389099, Váha brutto: 5.17 kg, Balící jednotka: 1.00 pc(s)


Vyobrazení

Další informace

Eaves support for spanning conductors / cables over it, St/tZn
Eaves support for spanning conductors over it, distance between the wall and conductors is adjustable
Material: St/tZn
Support Rd: 7-10 mm

Brand: DEHN
Type: TS 7.10 V1.25 1.40M STTZN
Part No.: 239001
or equivalent.

Certifikáty

 

Technické informace

Material St/tZn
Adjustable range (l1) 1.40-1.55 m
Support Rd 7-10 mm

Produkt 239001 byl přidán na seznam.

K seznamu

Produkt 239001 byl přidán do nákupního košíku.

Obj. č. 239009 TS 7.10 V1.25 1.55M V2A

GTIN 4013364072350, Číslo celního sazebníku (EU): 85389099, Váha brutto: 4.04 kg, Balící jednotka: 1.00 pc(s)


Vyobrazení

Další informace

Eaves support for spanning conductors / cables over it, StSt
Eaves support for spanning conductors over it, distance between the wall and conductors is adjustable
Material: StSt
Support Rd: 7-10 mm

Brand: DEHN
Type: TS 7.10 V1.25 1.55M V2A
Part No.: 239009
or equivalent.

Certifikáty

 

Technické informace

Material StSt
Adjustable range (l1) 1.25-1.55 m
Support Rd 7-10 mm

Produkt 239009 byl přidán na seznam.

K seznamu

Produkt 239009 byl přidán do nákupního košíku.

Obj. č. 239019 TS 7.10 V1.45 1.75M V2A

GTIN 4013364093560, Číslo celního sazebníku (EU): 85389099, Váha brutto: 5.20 kg, Balící jednotka: 1.00 pc(s)


Vyobrazení

Další informace

Eaves support for spanning conductors / cables over it, StSt
Eaves support for spanning conductors over it, distance between the wall and conductors is adjustable
Material: StSt
Support Rd: 7-10 mm

Brand: DEHN
Type: TS 7.10 V1.45 1.75M V2A
Part No.: 239019
or equivalent.

Certifikáty

 

Technické informace

Material StSt
Adjustable range (l1) 1.45-1.75 m
Support Rd 7-10 mm

Produkt 239019 byl přidán na seznam.

K seznamu

Produkt 239019 byl přidán do nákupního košíku.


Anchoring block

To fix the conductors / cables on the wall.

1 Produkt

Obj. č. 241009 ASK 8 150 40 2XB10.5 V2A

GTIN 4013364072985, Číslo celního sazebníku (EU): 85389099, Váha brutto: 383.21 g, Balící jednotka: 20.00 pc(s)


Vyobrazení

Další informace

Anchoring block
Anchoring block for fixing the down conductor on the wall or facade
Material: StSt
Dimensions: 150 x 40 x 6 mm
Support Rd: 8 mm

Brand: DEHN
Type: ASK 8 150 40 2XB10.5 V2A
Part No.: 241009
or equivalent.

Certifikáty

 

Technické informace

Material StSt
Dimensions (l x w x d) 150 x 40 x 6 mm
Support Rd 8 mm

Produkt 241009 byl přidán na seznam.

K seznamu

Produkt 241009 byl přidán do nákupního košíku.


back to top