Jímací stožáry s vodičem HVI light plus na ploché střechy

Kompletní sada složená z krátké/dlouhé jímací tyče, podpůrné trubky, upevňovací sady (obsahuje připojovací destičku, umělohmotné držáky, stahovací pásky a PA kroužek) a stojanu.
Přizpůsobení ke sklonu střechy do max. 10°.
Betonové podstavce (hmotnost 17 kg) a podložky je třeba objednat zvlášť.

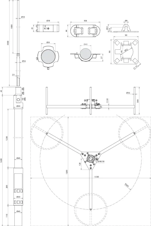
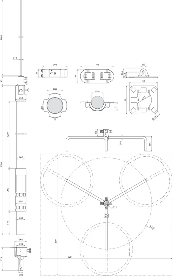
Jímací stožár s malou trojnožkou a krátkou jímací tyčí

2 Produkty

Obj. č. 819685 FM D40 L2200 GFK AL V2A DBS R320 STTZN

GTIN 4013364494459, Číslo celního sazebníku (EU): 85389099, Váha brutto: 6.34 kg, Balící jednotka: 1.00 ks


Vyobrazení

Další informace

Jímací stožáry pro vodič HVI light plus na ploché střechy
Komplet se 4-násobnou připojovací destičkou pro
vodič HVI light plus a upevňovací sadou pro instalaci
vedení na jímací stožár
Pro dodržení dostatečné vzdálenosti vůči
vodivým částem podle ČSN EN 62305-3
Izolační část z umělé hmoty vyztužené skelnými vlákny
(glasfaserverstärkte Kunststoff GFK)
Trubka Ø 40mm
Koeficient materiálu km = 0,7
Barva světle šedá, odolnost vůči UV záření
Stožárové jímače jsou dimenzovány podle
Eurocode 1 (ČSN EN 1991-1-4 + ČSN EN 1991-1-4/NA)
Přizpůsobení sklonu střechy maximálně do 10 stupňů
Stožárový jímač 40 pro vodič HVI light plus
Celková výška 2200 mm
Stohovatelné betonové podstavce (obj. č. 102 010) a
podložky (obj. č. 102 050) je třeba objednat samostatně.
Materiál stojanu: FeZn
Poloměr stojanu: 320 mm
Materiál podpůrné trubky: GFK/Al
Délka podpůrné trubky: 1600 mm
Izolační délka: 1230 mm
Délka jímací tyče: 500 mm
Materiál jímací tyče: nerez
Norma: DIN IEC/TS 62561-8 (VDE V 0185-561-8)

Výrobek: DEHN
Typ: FM D40 L2200 GFK AL V2A DBS R320 STTZN
Obj. č.: 819685
nebo rovnocenný.

Certifikáty

 

Technické informace

Výška 2200 mm
Materiál stojanu FeZn
Poloměr stojanu 320 mm
Materiál podpůrné trubky GFK/ Al
Délka podpůrné trubky 1600 mm
Délka jímací tyče 500 mm
Materiál jímací tyče nerez
Norma DIN IEC/TS 62561-8 (VDE V 0185-561-8)

Produkt 819685 byl přidán na seznam.

K seznamu

Produkt 819685 byl přidán do nákupního košíku.

Obj. č. 819690 FM D40 L2700 GFK AL V2A DBS R320 STTZN

GTIN 4013364494466, Číslo celního sazebníku (EU): 85389099, Váha brutto: 6.61 kg, Balící jednotka: 1.00 ks


Vyobrazení

Další informace

Jímací stožáry pro vodič HVI light plus na ploché střechy
Komplet se 4-násobnou připojovací destičkou pro
vodič HVI light plus a upevňovací sadou pro instalaci
vedení na jímací stožár
Pro dodržení dostatečné vzdálenosti vůči
vodivým částem podle ČSN EN 62305-3
Izolační část z umělé hmoty vyztužené skelnými vlákny
(glasfaserverstärkte Kunststoff GFK)
Trubka Ø 40mm
Koeficient materiálu km = 0,7
Barva světle šedá, odolnost vůči UV záření
Stožárové jímače jsou dimenzovány podle
Eurocode 1 (ČSN EN 1991-1-4 + ČSN EN 1991-1-4/NA)
Přizpůsobení sklonu střechy maximálně do 10 stupňů
Stožárový jímač 40 pro vodič HVI light plus
Celková výška 2700 mm
Stohovatelné betonové podstavce (obj. č. 102 010) a
podložky (obj. č. 102 050) je třeba objednat samostatně.
Materiál stojanu: FeZn
Poloměr stojanu: 320 mm
Materiál podpůrné trubky: GFK/Al
Délka podpůrné trubky: 1600 mm
Izolační délka: 1230 mm
Délka jímací tyče: 1000 mm
Materiál jímací tyče: nerez
Norma: DIN IEC/TS 62561-8 (VDE V 0185-561-8)

Výrobek: DEHN
Typ: FM D40 L2700 GFK AL V2A DBS R320 STTZN
Obj. č.: 819690
nebo rovnocenný.

Certifikáty

 

Technické informace

Výška 2700 mm
Materiál stojanu FeZn
Poloměr stojanu 320 mm
Materiál podpůrné trubky GFK/ Al
Délka podpůrné trubky 1600 mm
Délka jímací tyče 1000 mm
Materiál jímací tyče nerez
Norma DIN IEC/TS 62561-8 (VDE V 0185-561-8)

Produkt 819690 byl přidán na seznam.

K seznamu

Produkt 819690 byl přidán do nákupního košíku.


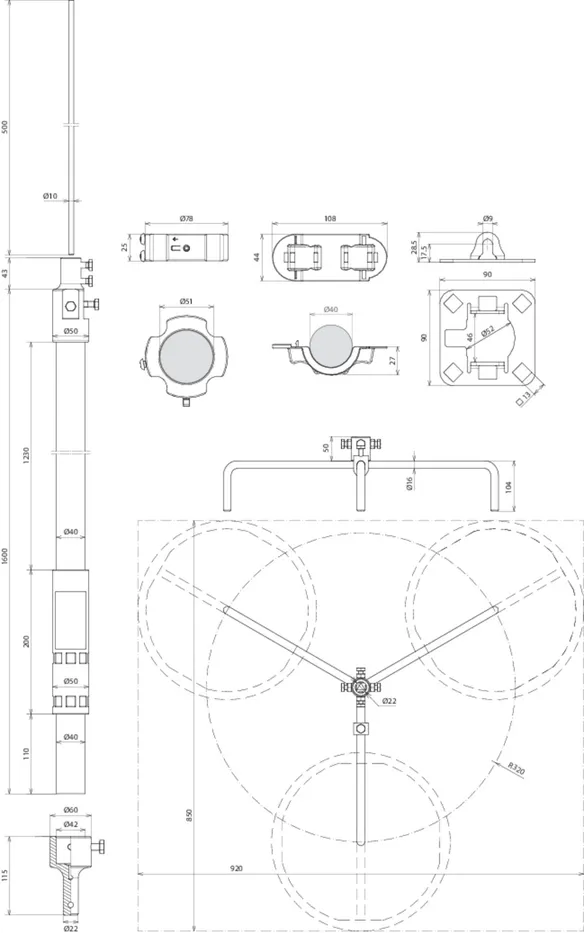
Jímací stožár s velkou trojnožkou a krátkou jímací tyčí

1 Produkt

Obj. č. 819682 FM D40 L2700 GFK AL V2A DBS R560 HVI60

GTIN 4013364494428, Číslo celního sazebníku (EU): 85389099, Váha brutto: 12.86 kg, Balící jednotka: 1.00 ks


Vyobrazení

Další informace

Jímací stožáry pro vodič HVI light plus na ploché střechy
Komplet se 4-násobnou připojovací destičkou pro
vodič HVI light plus a upevňovací sadou pro instalaci
vedení na jímací stožár
Pro dodržení dostatečné vzdálenosti vůči
vodivým částem podle ČSN EN 62305-3
Izolační část z umělé hmoty vyztužené skelnými vlákny
(glasfaserverstärkte Kunststoff GFK)
Trubka Ø 40mm
Koeficient materiálu km = 0,7
Barva světle šedá, odolnost vůči UV záření
Stožárové jímače jsou dimenzovány podle
Eurocode 1 (ČSN EN 1991-1-4 + ČSN EN 1991-1-4/NA) pro
max. rychlost nárazového větru 200 km/h.
Přizpůsobení sklonu střechy maximálně do 10 stupňů
Stožárový jímač 40 pro vodič HVI light plus
Celková výška 2700 mm
Stohovatelné betonové podstavce (obj. č. 102 010) a
podložky (obj. č. 102 050) je třeba objednat samostatně.
Materiál stojanu: FeZn
Poloměr stojanu: 560 mm
Materiál podpůrné trubky: GFK/Al
Délka podpůrné trubky: 1600 mm
Izolační délka: 1230 mm
Délka jímací tyče: 1000 mm
Materiál jímací tyče: nerez
Norma: DIN IEC/TS 62561-8 (VDE V 0185-561-8)

Výrobek: DEHN
Typ: FM D40 L2700 GFK AL V2A DBS R560 HVI60
Obj. č.: 819682
nebo rovnocenný.

Certifikáty

 

Technické informace

Výška 2700 mm
Materiál stojanu FeZn
Poloměr stojanu 560 mm
Materiál podpůrné trubky GFK/ Al
Délka podpůrné trubky 1600 mm
Délka jímací tyče 1000 mm
Materiál jímací tyče nerez
Norma DIN IEC/TS 62561-8 (VDE V 0185-561-8)

Produkt 819682 byl přidán na seznam.

K seznamu

Produkt 819682 byl přidán do nákupního košíku.


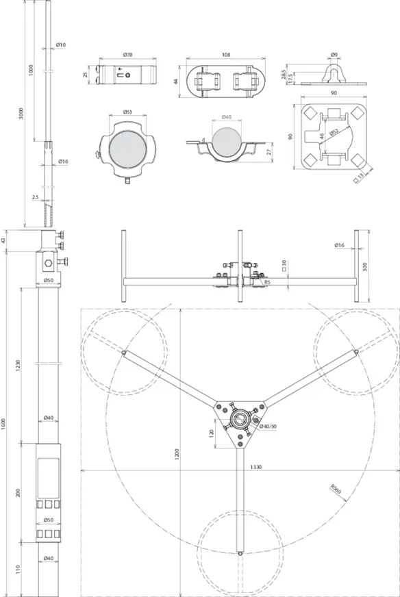
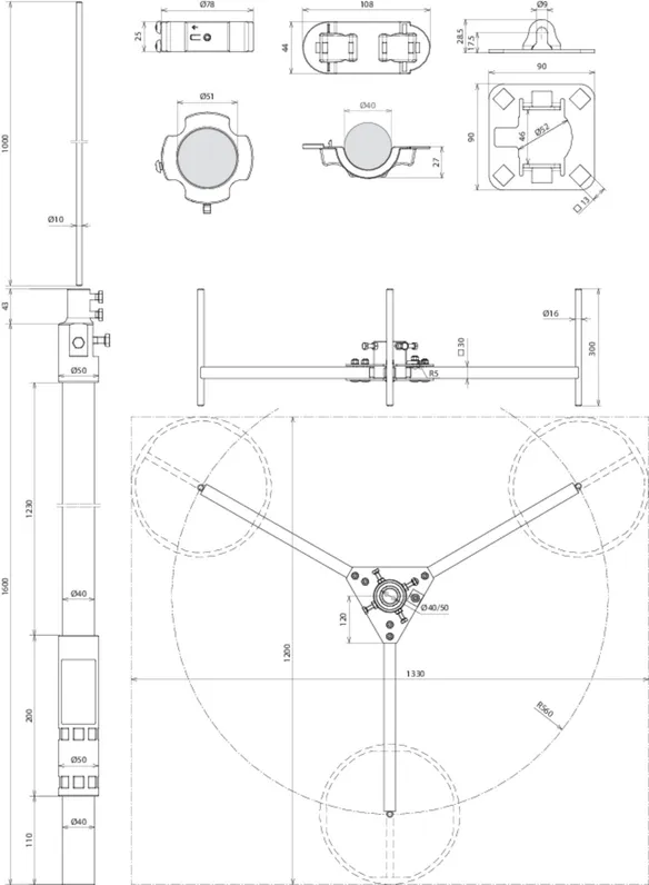
Jímací stožár s velkou trojnožkou a dlouhou jímací tyčí

2 Produkty

Obj. č. 819687 FM D40 L3700 GFK AL AL DBS R560 HVI60

GTIN 4013364494435, Číslo celního sazebníku (EU): 85389099, Váha brutto: 13.02 kg, Balící jednotka: 1.00 ks


Vyobrazení

Další informace

Jímací stožáry pro vodič HVI light plus na ploché střechy
Komplet se 4-násobnou připojovací destičkou pro
vodič HVI light plus a upevňovací sadou pro instalaci
vedení na jímací stožár
Pro dodržení dostatečné vzdálenosti vůči
vodivým částem podle ČSN EN 62305-3
Izolační část z umělé hmoty vyztužené skelnými vlákny
(glasfaserverstärkte Kunststoff GFK)
Trubka Ø 40mm
Koeficient materiálu km = 0,7
Barva světle šedá, odolnost vůči UV záření
Stožárové jímače jsou dimenzovány podle
Eurocode 1 (ČSN EN 1991-1-4 + ČSN EN 1991-1-4/NA) pro
max. rychlost nárazového větru 159 km/h.
Přizpůsobení sklonu střechy maximálně do 10 stupňů
Stožárový jímač 40 pro vodič HVI light plus
Celková výška 2700 mm
Stohovatelné betonové podstavce (obj. č. 102 010) a
podložky (obj. č. 102 050) je třeba objednat samostatně.
Materiál stojanu: FeZn
Poloměr stojanu: 560 mm
Materiál podpůrné trubky: GFK/Al
Délka podpůrné trubky: 1600 mm
Izolační délka: 1230 mm
Délka jímací tyče: 2000 mm
Materiál jímací tyče: AlMgSi
Norma: DIN IEC/TS 62561-8 (VDE V 0185-561-8)

Výrobek: DEHN
Typ: FM D40 L3700 GFK AL AL DBS R560 HVI60
Obj. č.: 819687
nebo rovnocenný.

Certifikáty

 

Technické informace

Výška 3700 mm
Materiál stojanu FeZn
Poloměr stojanu 560 mm
Materiál podpůrné trubky GFK/ Al
Délka podpůrné trubky 1600 mm
Délka jímací tyče 2000 mm
Materiál jímací tyče AlMgSi
Norma DIN IEC/TS 62561-8 (VDE V 0185-561-8)

Produkt 819687 byl přidán na seznam.

K seznamu

Produkt 819687 byl přidán do nákupního košíku.

Obj. č. 819680 FM D40 L4700 GFK AL DBS R560 STTZN

GTIN 4013364494442, Číslo celního sazebníku (EU): 85389099, Váha brutto: 13.06 kg, Balící jednotka: 1.00 ks


Vyobrazení

Další informace

Jímací stožáry pro vodič HVI light plus na ploché střechy
Komplet se 4-násobnou připojovací destičkou pro
vodič HVI light plus a upevňovací sadou pro instalaci
vedení na jímací stožár
Pro dodržení dostatečné vzdálenosti vůči
vodivým částem podle ČSN EN 62305-3
Izolační část z umělé hmoty vyztužené skelnými vlákny
(glasfaserverstärkte Kunststoff GFK)
Trubka Ø 40mm
Koeficient materiálu km = 0,7
Barva světle šedá, odolnost vůči UV záření
Stožárové jímače jsou dimenzovány podle
Eurocode 1 (ČSN EN 1991-1-4 + ČSN EN 1991-1-4/NA) pro
max. rychlost nárazového větru 99 km/h.
Přizpůsobení sklonu střechy maximálně do 10 stupňů
Stožárový jímač 40 pro vodič HVI light plus
Celková výška 2700 mm
Stohovatelné betonové podstavce (obj. č. 102 010) a
podložky (obj. č. 102 050) je třeba objednat samostatně.
Materiál stojanu: FeZn
Poloměr stojanu: 560 mm
Materiál podpůrné trubky: GFK/Al
Délka podpůrné trubky: 1600 mm
Izolační délka: 1230 mm
Délka jímací tyče: 3000 mm
Materiál jímací tyče: AlMgSi
Norma: DIN IEC/TS 62561-8 (VDE V 0185-561-8)

Výrobek: DEHN
Typ: FM D40 L4700 GFK AL DBS R560 STTZN
Obj. č.: 819680
nebo rovnocenný.

Certifikáty

 

Technické informace

Výška 4700 mm
Materiál stojanu FeZn
Poloměr stojanu 560 mm
Materiál podpůrné trubky GFK/ Al
Délka podpůrné trubky 1600 mm
Délka jímací tyče 3000 mm
Materiál jímací tyče AlMgSi
Norma DIN IEC/TS 62561-8 (VDE V 0185-561-8)

Produkt 819680 byl přidán na seznam.

K seznamu

Produkt 819680 byl přidán do nákupního košíku.


back to top