Jímací stožár s vodičem HVI power

Maximální volná délka stožáru je 8,5 m, minimální objednací délka je 10 m.
Stožár musí být uchycen minimálně třemi držáky (obj. č. 105 345).

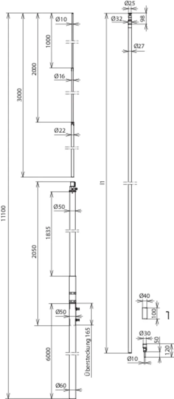
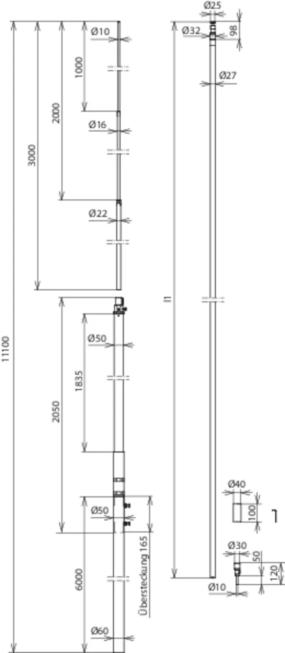
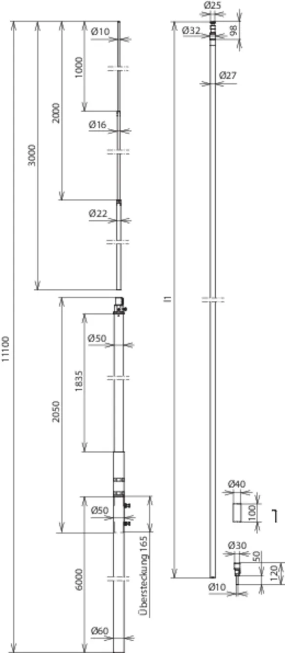
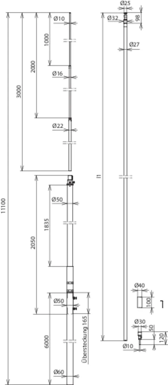
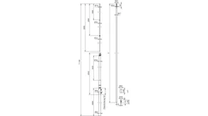
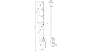
Dělený stožár je složen z těchto součástí:
- jímací tyč Al Ø 22 / 16 / 10 mm, délka 3000 mm
- podpůrná trubka GFK/Al Ø 50/60 mm, délka 2300 mm (přesazení 200 mm)
- stožár FeZn Ø 60 mm, délka 6000 mm se zajišťovacími šrouby M10 nerez
- vodič HVI power pro uložení uvnitř
- přepravní délka je 6000 mm

Provedení s jedním vodičem HVI power uloženým uvnitř. Délku vedení je třeba zadat při objednání (krok 0,5 m).

Nejvyšší celková délka vodiče HVI power je 11,0 m pro třídu ochrany před bleskem LPL I.
Nejvyšší celková délka vodiče HVI power je 15,0 m pro třídu ochrany před bleskem LPL II.
Nejvyšší celková délka vodiče HVI power je 22,5 m pro třídu ochrany před bleskem LPL III.

1 Produkt

Obj. č. 819760 FM 60 L11M IP HVIP L10M GFK AL STTZN

GTIN 4013364240391, Číslo celního sazebníku (EU): 85389099, Váha brutto: 57.89 kg, Balící jednotka: 1.00 ks

Staré provedení

Vyobrazení

Další informace

Jímací stožár s vodičem HVI power
Jímací stožár s vodičem HVI power
vodič s vysokonapěťovou izolací
pro dodržení dostatečné vzdálenosti vůči
vodivým částem podle ČSN EN 62305-3
Speciálně pro použití např. ve fermentorech nebo
v bioplynových stanicích
podle třídy II systému ochrany před bleskem.
Jímací stožáry jsou dimenzovány podle
Eurocode 1 (ČSN EN 1991-1-4 + DIN EN 1991-1-4/NA)
Stožár je složen z těchto součástí:
- jímací tyč Al Ø 22 / 16 / 10 mm, délka 3000 mm
- podpůrná trubka GFK/Al Ø 50/60 mm
- stožár FeZn Ø 60 mm
plus
tři nastavitelné držáky (obj. č. 105 345)
maximální volná délka stožáru je 8,5 m
Provedení s jedním vodičem HVI power uloženým uvnitř,
minimální objednací délka 10 m.
Jiné požadované délky vodiče je třeba zadat při objednání,
Nejvyšší celková délka vodiče HVI power (LPS I) je 11,0 m.
Nejvyšší celková délka vodiče HVI power (LPS II) je 15,0 m.
Nejvyšší celková délka vodiče HVI power (LPS III) je 22,5 m.
Celková výška: 11000 mm
Délka jímací tyče: 3000 mm
Délka podpůrné trubky: 2300 mm
Délka stožáru: 6000 mm
Průměr vodiče: 27 mm
Barva vodiče: černá ●
Materiál vodiče: Cu
Minimální objednací délka: 10 m
Maximální objednací délka: 35 m
Max. rychlost nárazového větru: (max. volná délka 8500 mm, 1x HVI power vnitřní) 138 km/h
Norma: DIN IEC/TS 62561-8 (VDE V 0185-561-8)

Výrobek: DEHN
Typ: FM 60 L11M IP HVIP L10M GFK AL STTZN
Obj. č.: 819760
nebo rovnocenný.

Certifikáty

 

Technické informace

Celková výška 11000 mm
Délka jímací tyče 3000 mm
Materiál jímací tyče Al
Délka podpůrné trubky 2300 mm
Materiál podpůrné trubky GFK/ Al
Délka stožáru 6000 mm
Materiál stožáru FeZn
Průměr vodiče 27 mm
Barva vodiče černá ●
Materiál vodiče Cu
Minimální objednací délka 10 m
Maximální objednací délka 35 m
Určeno pro uložení vně trubky ne
Norma DIN IEC/TS 62561-8 (VDE V 0185-561-8)

Produkt 819760 byl přidán na seznam.

K seznamu

Produkt 819760 byl přidán do nákupního košíku.


back to top