Provedení s jedním vodičem HVI power uloženým uvnitř. Délku vedení je třeba zadat při objednání (krok 0,5 m).
Nejvyšší celková délka vodiče HVI power je 11,0 m pro třídu ochrany před bleskem LPL I.
Nejvyšší celková délka vodiče HVI power je 15,0 m pro třídu ochrany před bleskem LPL II.
Nejvyšší celková délka vodiče HVI power je 22,5 m pro třídu ochrany před bleskem LPL III.
1 Produkt
Obj. č. 819760 FM 60 L11M IP HVIP L10M GFK AL STTZN
GTIN 4013364240391, Číslo celního sazebníku (EU): 85389099, Váha brutto: 57.89 kg, Balící jednotka: 1.00 ks
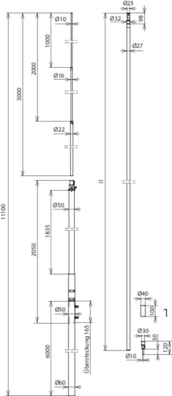
Staré provedeníTechnické informace
| Celková výška | 11000 mm |
| Délka jímací tyče | 3000 mm |
| Materiál jímací tyče | Al |
| Délka podpůrné trubky | 2300 mm |
| Materiál podpůrné trubky | GFK/ Al |
| Délka stožáru | 6000 mm |
| Materiál stožáru | FeZn |
| Průměr vodiče | 27 mm |
| Barva vodiče | černá ● |
| Materiál vodiče | Cu |
| Minimální objednací délka | 10 m |
| Maximální objednací délka | 35 m |
| Určeno pro uložení vně trubky | ne |
| Norma | DIN IEC/TS 62561-8 (VDE V 0185-561-8) |