Stojan pro podpůrné trubky bez stranového vývodu

Stojany pro upevnění podpůrných trubek HVI, pro HVI vodiče uložené uvnitř/vně podpůrné trubky, s dvojitou příložkou pro připojení dvou drátů prům. 8 - 10 mm. Přizpůsobení sklonu střechy do max. 10° pomocí sady upevňovacích tyčí pro betonové podstavce.

Stohovatelné betonové podstavce, podložky a sada tyčí pro uchycení betonových podstavců jsou k dispozici samostatně jako příslušenství.

Upozornění: informace o materiálové kompatibilitě střešních držáků vedení a podložek ve spojení se střešními díly si můžete vyžádat u společnosti DEHN.

Tříramenný stojan malý

1 Produkt

Obj. č. 107390 DBS KB D50 RA680 V2A

GTIN 4013364478466, Číslo celního sazebníku (EU): 85389099, Váha brutto: 7.75 kg, Balící jednotka: 1.00 ks

Staré provedení

Vyobrazení

Další informace

Tříramenný nerezový stojan malý (rozkládací provedení)
třířramenný stojan (rozkládací provedení) pro podpůrné trubky
D 50 mm se stranovým vývodem nebo
jímací tyče D40 mm s redukcí
s dvojitou příložkou pro připojení dvou drátů 8 – 10 mm
pro sestavení s betonovými podstavci (hmotnost 17 kg)
a přizpůsobením sklonu střechy do 10°.
Stohovatelné betonové podstavce (obj. č. 102 010)
podložky (obj. č. 102 050)
sadu upevňovacích tyčí (obj. č. 107 396)
sadu redukcí (obj. č. 107 399)
je třeba objednat zvlášť.
Stojany jsou dimenzovány podle Eurocode 1
(DIN EN 1991-1-4 + DIN EN 1991-1-4/NA).
Materiál stojanu: nerez
Připevnění: 50 a 40 *) mm
Poloměr: 680 mm
Plošné rozměry stojanu: 1175 x 1020 mm

Výrobek: DEHN
Typ: DBS KB D50 RA680 V2A
Obj. č.: 107390
nebo rovnocenný.

Certifikáty

 

Technické informace

Materiál stojanu nerez
Připevnění 50 a 40 *) mm
Poloměr 680 mm
Plošné rozměry stojanu 1175 x 1020 mm
*) Pouze se sadou adaptérů obj. č. 107 399.

Produkt 107390 byl přidán na seznam.

K seznamu

Produkt 107390 byl přidán do nákupního košíku.


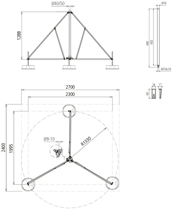
Tříramenný stojan velký

1 Produkt

Obj. č. 107391 DBS KB D50 RA1330 V2A

GTIN 4013364478473, Číslo celního sazebníku (EU): 85389099, Váha brutto: 15.60 kg, Balící jednotka: 1.00 ks

Staré provedení

Vyobrazení

Další informace

Tříramenný nerezový stojan velký (rozkládací provedení)
třířramenný stojan (rozkládací provedení) pro podpůrné trubky
D 50 mm se stranovým vývodem nebo
jímací tyče D40 mm s redukcí
s dvojitou příložkou pro připojení dvou drátů 8 – 10 mm
pro sestavení s betonovými podstavci (hmotnost 17 kg)
a přizpůsobením sklonu střechy do 10°.
Stohovatelné betonové podstavce (obj. č. 102 010)
podložky (obj. č. 102 050)
sadu upevňovacích tyčí (obj. č. 107 396)
sadu redukcí (obj. č. 107 399)
je třeba objednat zvlášť.
Stojany jsou dimenzovány podle Eurocode 1
(DIN EN 1991-1-4 + DIN EN 1991-1-4/NA).
Materiál stojanu: nerez
Připevnění: 50 a 40 *) mm
Poloměr: 1330 mm
Plošné rozměry stojanu: 2300 x 1995 mm

Výrobek: DEHN
Typ: DBS KB D50 RA1330 V2A
Obj. č.: 107391
nebo rovnocenný.

 

Technické informace

Materiál stojanu nerez
Připevnění 50 a 40 *) mm
Poloměr 1330 mm
Plošné rozměry stojanu 2300 x 1995 mm
*) Pouze se sadou adaptérů obj. č. 107 399.

Produkt 107391 byl přidán na seznam.

K seznamu

Produkt 107391 byl přidán do nákupního košíku.


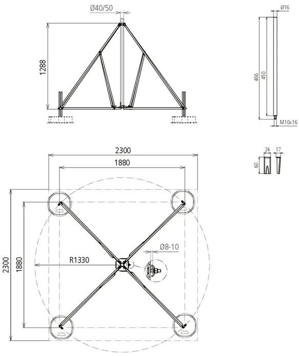
Čtyřramenný stojan malý

1 Produkt

Obj. č. 107490 VBS KB D50 RA680 V2A

GTIN 4013364478480, Číslo celního sazebníku (EU): 85389099, Váha brutto: 10.38 kg, Balící jednotka: 1.00 ks


Vyobrazení

Další informace

Čtyřramenný nerezový stojan malý (rozkládací provedení)
čtyřramenný stojan (rozkládací provedení) pro podpůrné trubky
D 50 mm se stranovým vývodem nebo
jímací tyče D40 mm s redukcí
s dvojitou příložkou pro připojení dvou drátů 8 – 10 mm
pro sestavení s betonovými podstavci (hmotnost 17 kg)
a přizpůsobením sklonu střechy do 10°.
Stohovatelné betonové podstavce (obj. č. 102 010)
podložky (obj. č. 102 050)
sadu upevňovacích tyčí (obj. č. 107 496)
sadu redukcí (obj. č. 107 499)
je třeba objednat zvlášť.
Stojany jsou dimenzovány podle Eurocode 1
(DIN EN 1991-1-4 + DIN EN 1991-1-4/NA).
Materiál stojanu: nerez
Připevnění: 50 a 40 *) mm
Poloměr: 680 mm
Plošné rozměry stojanu: 960 x 960 mm

Výrobek: DEHN
Typ: VBS KB D50 RA680 V2A
Obj. č.: 107490
nebo rovnocenný.

Certifikáty

 

Technické informace

Materiál stojanu nerez
Připevnění 50 a 40 *) mm
Poloměr 680 mm
Plošné rozměry stojanu 960 x 960 mm
*) Pouze se sadou adaptérů obj. č. 107 399.

Produkt 107490 byl přidán na seznam.

K seznamu

Produkt 107490 byl přidán do nákupního košíku.


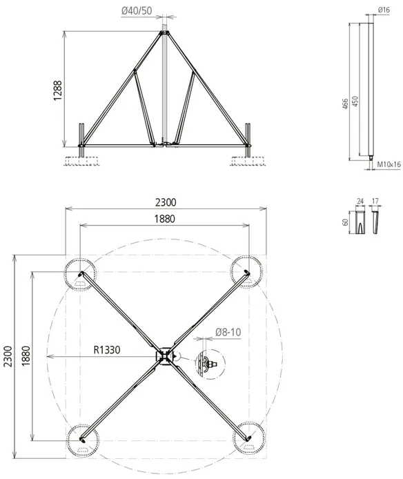
Čtyřramenný stojan velký

1 Produkt

Obj. č. 107491 VBS KB D50 RA1330 V2A

GTIN 4013364478497, Číslo celního sazebníku (EU): 85389099, Váha brutto: 17.63 kg, Balící jednotka: 1.00 ks


Vyobrazení

Další informace

Čtyřramenný nerezový stojan velký (rozkládací provedení)
čtyřramenný stojan (rozkládací provedení) pro podpůrné trubky
D 50 mm se stranovým vývodem nebo
jímací tyče D40 mm s redukcí
s dvojitou příložkou pro připojení dvou drátů 8 – 10 mm
pro sestavení s betonovými podstavci (hmotnost 17 kg)
a přizpůsobením sklonu střechy do 10°.
Stohovatelné betonové podstavce (obj. č. 102 010)
podložky (obj. č. 102 050)
sadu upevňovacích tyčí (obj. č. 107 496)
sadu redukcí (obj. č. 107 499)
je třeba objednat zvlášť.
Stojany jsou dimenzovány podle Eurocode 1
(DIN EN 1991-1-4 + DIN EN 1991-1-4/NA).
Materiál stojanu: nerez
Připevnění: 50 a 40 *) mm
Poloměr: 1330 mm
Plošné rozměry stojanu: 1880 x 1880 mm

Výrobek: DEHN
Typ: VBS KB D50 RA1330 V2A
Obj. č.: 107491
nebo rovnocenný.

 

Technické informace

Materiál stojanu nerez
Připevnění 50 a 40 *) mm
Poloměr 1330 mm
Plošné rozměry stojanu 1880 x 1880 mm
*) Pouze se sadou adaptérů obj. č. 107 399.

Produkt 107491 byl přidán na seznam.

K seznamu

Produkt 107491 byl přidán do nákupního košíku.


Tříramenný stojan malý FeZn

Určený pro vnitřní uložení vodiče HVI.

2 Produkty

Obj. č. 105351 DBS KB D40.50 RA620 STTZN

GTIN 4013364238916, Číslo celního sazebníku (EU): 85389099, Váha brutto: 11.50 kg, Balící jednotka: 1.00 ks


Vyobrazení

Další informace

Tříramenný stojan malý, pro vodič HVI, FeZn
Tříramenný stojan pro vodič HVI v podpůrné trubce
speciální provedení pro podpůrné trubky (délka 3200 mm).
Z důvodu dodržení poloměru ohybu vodiče HVI
pod tříramenným stojanem je třeba umístit dva
betonové podstavce pod každé rameno
a jeden nahoru na každé rameno.
Bez dalšího upevnění na konstrukce
Stojan umožňuje přizpůsobení sklonu střechy až do 10°.
Betonové podstavce (obj. č. 102 010)
a podložky (obj. č. 102 050) je třeba objednat zvlášť.
Tříramenné stojany jsou dimenzovány podle Eurocode 1
(DIN EN 1991-1-4 + DIN EN 1991-1-4/NA).
Materiál stojanu: FeZn
Připevnění: 40 / 50 mm
Poloměr: 620 mm
Počet betonových podstavců: 3 - 12 ks á 17 kg
Plošné rozměry stojanu: 1300 x 1450 mm

Výrobek: DEHN
Typ: DBS KB D40.50 RA620 STTZN
Obj. č.: 105351
nebo rovnocenný.

Certifikáty

 

Technické informace

Materiál stojanu FeZn
Připevnění 40 / 50 mm
Poloměr 620 mm
Počet betonových podstavců 3 - 12 ks á 17 kg
Plošné rozměry stojanu 1300 x 1450 mm

Produkt 105351 byl přidán na seznam.

K seznamu

Produkt 105351 byl přidán do nákupního košíku.

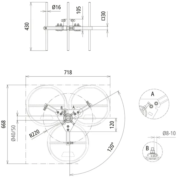
Obj. č. 105357 DBS KB D40.50 RA220 STTZN

GTIN 4013364527829, Číslo celního sazebníku (EU): 85389099, Váha brutto: 8.04 kg, Balící jednotka: 1.00 ks


Vyobrazení

Další informace

Kompaktní, výškově nastavitelný a sklopný tříramenný stojan
pro uchycení jímacích tyčí a podpůrných trubek
Ø 40 mm a Ø50 mm
Možnost vyrovnání sklonu střechy až do 10°
Lze umístit až čtyři betonové podstavce
ke každé noze
Materiál stojanu: FeZn
Připevnění: 40 / 50 mm
Poloměr: 220 mm
Počet betonových podstavců: 3 - 12 ks á 17 kg
Plošné rozměry stojanu: 668 x 718 mm

Výrobek: DEHN
Typ: DBS KB D40.50 RA220 STTZN
Obj. č.: 105357
nebo rovnocenný.

 

Technické informace

Materiál stojanu FeZn
Připevnění 40 / 50 mm
Poloměr 220 mm
Počet betonových podstavců 3 - 12 ks á 17 kg
Plošné rozměry stojanu 668 x 718 mm

Produkt 105357 byl přidán na seznam.

K seznamu

Produkt 105357 byl přidán do nákupního košíku.


Tříramenný stojan velký FeZn

Určený pro vnější uložení vodiče HVI.

1 Produkt

Obj. č. 105201 DBS KB D40.50 RA1435 STTZN

GTIN 4013364095915, Číslo celního sazebníku (EU): 85389099, Váha brutto: 17.23 kg, Balící jednotka: 1.00 ks


Vyobrazení

Další informace

Tříramenný stojan pro vodič HVI, FeZn
Tříramenný stojan pro vodič HVI v podpůrné trubce
speciální provedení pro podpůrné trubky (délka 4700 mm).
Z důvodu zachování poloměru ohybu vodiče HVI
pod tříramenným stojanem je třeba umístit dva
betonové podstavce pod každé rameno
a jeden nahoru na každé rameno.
Bez dalšího upevnění na konstrukce
Stojan umožňuje přizpůsobení sklonu střechy až do 10°.
Betonové podstavce (obj. č. 102 010)
a podložky (obj. č. 102 050) je třeba objednat zvlášť.
Tříramenné stojany jsou dimenzovány podle Eurocode 1
(DIN EN 1991-1-4 + DIN EN 1991-1-4/NA).
Materiál stojanu: FeZn
Připevnění: 40/50 mm
Poloměr: 1435 mm
Počet betonových podstavců: 3 - 12 ks à 17 kg
Plošné rozměry stojanu: 2520 x 2860 mm

Výrobek: DEHN
Typ: DBS KB D40.50 RA1435 STTZN
Obj. č.: 105201
nebo rovnocenný.

Certifikáty

 

Technické informace

Materiál stojanu FeZn
Připevnění 40/50 mm
Poloměr 1435 mm
Počet betonových podstavců 3 - 12 ks à 17 kg
Plošné rozměry stojanu 2520 x 2860 mm

Produkt 105201 byl přidán na seznam.

K seznamu

Produkt 105201 byl přidán do nákupního košíku.


back to top