Vodič HVI/HVI long

Vodič HVI/HVI long

Vodič s vysokonapěťovou izolací pro dodržení dostatečné vzdálenosti mezi vedením hromosvodu a ostatními vodivými součástmi podle ČSN EN 62305.

Použití do ekvivalentní dostatečné vzdálenosti s ≤ 75 cm (vzduch) nebo s ≤ 150 cm (pevný materiál).
Vodič HVI long splňuje požadavky uvedené v ČSN EN 62561-8.
Teplota pro práci s vodičem HVI long je od -5 do +40 °C a teplota prostředí (při pevném uchycení) je od -30 do +70 °C.

Vodič HVI (předem připravený pro vložení do podpůrné trubky)

Vodič má jeden zakončovací prvek nasazený, součástí balení je zakončovací prvek na druhý konec vodiče.
Minimální délka vodiče pro objednání je 6 m, potřebnou délku je třeba zadat při objednání (krok 0,5 m).

2 Produkty

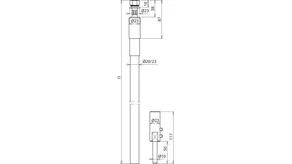
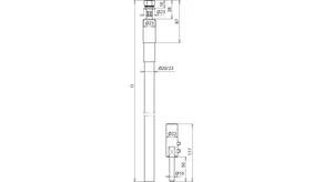
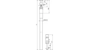
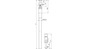
Obj. č. 819220 HVI RIV 75 20 L6M SW M

GTIN 4013364244238, Číslo celního sazebníku (EU): 85446010, Váha brutto: 3.10 kg, Balící jednotka: 1.00 ks

Staré provedení

Vyobrazení

Další informace

Vodič HVI (předem připravený pro vložení do podpůrné trubky), barva černá
Vodič HVI
vodič s vysokonapěťovou izolací
pro dodržení dostatečné vzdálenosti
vůči vodivým částem
podle ČSN EN 62305-3
ekvivalent dostatečné vzdálenosti s ≤ 75 cm (pro vzduch)
nebo s ≤ 150 cm (pro pevný materiál).
předem připravený pro umístění uvnitř podpůrné trubky
s připojovacím prvkem a uzemňovacím prvkem
odolný vůči povětrnostním vlivům a UV záření
Materiál vnitřního vodiče: Cu
Materiál izolace: PE
Materiál pláště: PE
Barva vodiče: černá ●
Průměr vodiče: 20 mm
Minimální objednací délka: 6 m
Norma: DIN IEC/TS 62561-8 (VDE V 0185-561-8)

Výrobek: DEHN
Typ: HVI RIV 75 20 L6M SW M
Obj. č.: 819220
nebo rovnocenný.

Certifikáty

 

Technické informace

Materiál vnitřního vodiče Cu
Materiál izolace PE
Materiál pláště PE
Barva vodiče černá ●
Průměr vodiče 20 mm
Minimální objednací délka 6 m
Norma DIN IEC/TS 62561-8 (VDE V 0185-561-8)

Produkt 819220 byl přidán na seznam.

K seznamu

Produkt 819220 byl přidán do nákupního košíku.

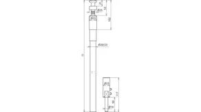
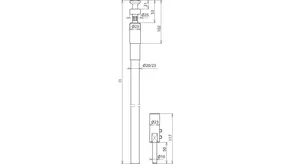
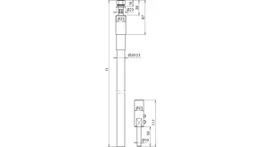
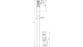
Obj. č. 819223 HVI RIV 75 23 L6M GR M

GTIN 4013364157675, Číslo celního sazebníku (EU): 85446010, Váha brutto: 5.30 kg, Balící jednotka: 1.00 ks

Staré provedení

Vyobrazení

Další informace

Vodič HVI, (předem připravený pro vložení do podpůrné trubky), barva šedá
vodič s vysokonapěťovou izolací
pro dodržení dostatečné vzdálenosti
vůči vodivým částem
podle ČSN EN 62305-3
ekvivalent dostatečné vzdálenosti s ≤ 75 cm (pro vzduch)
nebo s ≤ 150 cm (pro pevný materiál).
předem připravený pro umístění uvnitř podpůrné trubky
s připojovacím prvkem a uzemňovacím prvkem
odolný vůči povětrnostním vlivům a UV záření
Materiál vnitřního vodiče: Cu
Materiál izolace: PE
Materiál pláště: PE
Barva vodiče: šedá ●
Průměr vodiče: 23 mm
Minimální objednací délka: 6 m
Ochrana před dotykovým napětím: Ano (podle DS2094)
Norma: DIN IEC/TS 62561-8 (VDE V 0185-561-8)

Výrobek: DEHN
Typ: HVI RIV 75 23 L6M GR M
Obj. č.: 819223
nebo rovnocenný.

Certifikáty

 

Technické informace

Materiál vnitřního vodiče Cu
Materiál izolace PE
Materiál pláště PE
Barva vodiče šedá
Průměr vodiče 23 mm
Minimální objednací délka 6 m
Norma DIN IEC/TS 62561-8 (VDE V 0185-561-8)

Produkt 819223 byl přidán na seznam.

K seznamu

Produkt 819223 byl přidán do nákupního košíku.


Vodič HVI (předem připravený pro uložení vně podpůrné trubky)

Vodič má jeden zakončovací prvek nasazený, součástí balení je zakončovací prvek na druhý konec vodiče.
Minimální délka vodiče pro objednání je 6 m, potřebnou délku je třeba zadat při objednání (krok 0,5 m).

2 Produkty

Obj. č. 819226 HVI RAV 75 20 L6M SW M

GTIN 4013364260528, Číslo celního sazebníku (EU): 85446010, Váha brutto: 13.86 kg, Balící jednotka: 1.00 ks


Vyobrazení

Další informace


Vodič HVI
vodič s vysokonapěťovou izolací
pro dodržení dostatečné vzdálenosti
vůči vodivým částem
podle ČSN EN 62305-3
ekvivalent dostatečné vzdálenosti s ≤ 75 cm (pro vzduch)
nebo s ≤ 150 cm (pro pevný nmateriál).
předem připravený pro umístění vně podpůrné trubky
s připojovacím prvkem a uzemňovacím prvkem
odolný vůči povětrnostním vlivům a UV záření
Materiál vnitřního vodiče: Cu
Materiál izolace: PE
Materiál pláště: PE
Barva vodiče: černá ●
Průměr vodiče: 20 mm
Minimální objednací délka: 6 m
Norma: DIN IEC/TS 62561-8 (VDE V 0185-561-8)

Výrobek: DEHN
Typ: HVI RAV 75 20 L6M SW M
Obj. č.: 819226
nebo rovnocenný.

 

Technické informace

Materiál vnitřního vodiče Cu
Materiál izolace PE
Materiál pláště PE
Barva vodiče černá ●
Průměr vodiče 20 mm
Minimální objednací délka 6 m
Norma DIN IEC/TS 62561-8 (VDE V 0185-561-8)

Produkt 819226 byl přidán na seznam.

K seznamu

Produkt 819226 byl přidán do nákupního košíku.

Obj. č. 819227 HVI RAV 75 23 L6M GR M

GTIN 4013364157712, Číslo celního sazebníku (EU): 85446010, Váha brutto: 5.20 kg, Balící jednotka: 1.00 ks


Vyobrazení

Další informace

Vodič HVI (předem připravený pro vložení vně podpůrné trubky), barva šedá
Vodič HVI
vodič s vysokonapěťovou izolací
pro dodržení dostatečné vzdálenosti
vůči vodivým částem
podle ČSN EN 62305-3
ekvivalent dostatečné vzdálenosti s ≤ 75 cm (pro vzduch)
nebo s ≤ 150 cm (pro pevný materiál).
předem připravený pro umístění vně podpůrné trubky
s připojovacím prvkem a uzemňovacím prvkem
odolný vůči povětrnostním vlivům a UV záření
Materiál vnitřního vodiče: Cu
Materiál izolace: PE
Materiál pláště: PE
Barva vodiče: šedá ●
Průměr vodiče: 23 mm
Minimální objednací délka: 6 m
Ochrana před dotykovým napětím: Ano (podle DS2094)
Norma: DIN IEC/TS 62561-8 (VDE V 0185-561-8)

Výrobek: DEHN
Typ: HVI RAV 75 23 L6M GR M
Obj. č.: 819227
nebo rovnocenný.

 

Technické informace

Materiál vnitřního vodiče Cu
Materiál izolace PE
Materiál pláště PE
Barva vodiče šedá
Průměr vodiče 23 mm
Minimální objednací délka 6 m
Norma DIN IEC/TS 62561-8 (VDE V 0185-561-8)

Produkt 819227 byl přidán na seznam.

K seznamu

Produkt 819227 byl přidán do nákupního košíku.


Vodič HVI long (na kabelovém bubnu)

Vodič HVI long určený pro montáž na stavbě je dodáván na jednorázových překližkových kabelových bubnech, součástí dodávky je vnitřní šestihranný klíč.

6 Produkty

Obj. č. 819135 HVI LO 75 20 L100M SW M

GTIN 4013364141759, Číslo celního sazebníku (EU): 85446010, Váha brutto: 488.00 g/m, Balící jednotka: 100.00 m


Vyobrazení

Další informace

Vodič HVI (na kabelovém bubnu), barva černá
Vodič HVI
vodič s vysokonapěťovou izolací
pro dodržení dostatečné vzdálenosti
vůči vodivým částem
podle ČSN EN 62305-3
ekvivalent dostatečné vzdálenosti s ≤ 75 cm (pro vzduch)
nebo s ≤ 150 cm (pro pevný materiál).
odolný vůči povětrnostním vlivům a UV záření
Materiál vnitřního vodiče: Cu
Materiál izolace: PE
Materiál pláště: PE
Barva vodiče: černá ●
Průměr vodiče: 20 mm
Norma: DIN IEC/TS 62561-8 (VDE V 0185-561-8)

Výrobek: DEHN
Typ: HVI LO 75 20 L100M SW M
Obj. č.: 819135
nebo rovnocenný.

Certifikáty

 

Technické informace

Materiál vnitřního vodiče Cu
Materiál izolace PE
Materiál pláště PE
Barva vodiče černá ●
Průměr vodiče 20 mm
Norma DIN IEC/TS 62561-8 (VDE V 0185-561-8)

Produkt 819135 byl přidán na seznam.

K seznamu

Produkt 819135 byl přidán do nákupního košíku.

Obj. č. 819136 HVI LO 75 23 L100M GR M

GTIN 4013364147140, Číslo celního sazebníku (EU): 85446010, Váha brutto: 630.00 g/m, Balící jednotka: 100.00 m


Vyobrazení

Další informace

Vodič HVI (na kabelovém bubnu), barva šedá
Vodič HVI
vodič s vysokonapěťovou izolací
pro dodržení dostatečné vzdálenosti
vůči vodivým částem
podle ČSN EN 62305-3
ekvivalent dostatečné vzdálenosti s ≤ 75 cm (pro vzduch)
nebo s ≤ 150 cm (pro pevný materiál).
odolný vůči povětrnostním vlivům a UV záření
Materiál vnitřního vodiče: Cu
Materiál izolace: PE
Materiál pláště: PE
Barva vodiče: šedá ●
Průměr vodiče: 23 mm
Ochrana před dotykovým napětím: Ano (podle DS2094)
Norma: DIN IEC/TS 62561-8 (VDE V 0185-561-8)

Výrobek: DEHN
Typ: HVI LO 75 23 L100M GR M
Obj. č.: 819136
nebo rovnocenný.

Certifikáty

 

Technické informace

Materiál vnitřního vodiče Cu
Materiál izolace PE
Materiál pláště PE
Barva vodiče šedá
Průměr vodiče 23 mm
Norma DIN IEC/TS 62561-8 (VDE V 0185-561-8)

Produkt 819136 byl přidán na seznam.

K seznamu

Produkt 819136 byl přidán do nákupního košíku.

Obj. č. 819138 HVI LO 75 20 L500M SW M

GTIN 4013364434523, Číslo celního sazebníku (EU): 85446010, Váha brutto: 488.00 g/m, Balící jednotka: 500.00 m


Vyobrazení

Další informace

Vodič HVI (na kabelovém bubnu), barva černá
Vodič HVI
vodič s vysokonapěťovou izolací
pro dodržení dostatečné vzdálenosti
vůči vodivým částem
podle ČSN EN 62305-3
ekvivalent dostatečné vzdálenosti s ≤ 75 cm (pro vzduch)
nebo s ≤ 150 cm (pro pevný materiál).
odolný vůči povětrnostním vlivům a UV záření
Materiál vnitřního vodiče: Cu
Materiál izolace: PE
Materiál pláště: PE
Barva vodiče: černá ●
Průměr vodiče: 20 mm
Norma: DIN IEC/TS 62561-8 (VDE V 0185-561-8)

Výrobek: DEHN
Typ: HVI LO 75 20 L500M SW M
Obj. č.: 819138
nebo rovnocenný.

Certifikáty

 

Technické informace

Materiál vnitřního vodiče Cu
Materiál izolace PE
Materiál pláště PE
Barva vodiče černá ●
Průměr vodiče 20 mm
Norma DIN IEC/TS 62561-8 (VDE V 0185-561-8)

Produkt 819138 byl přidán na seznam.

K seznamu

Produkt 819138 byl přidán do nákupního košíku.

Obj. č. 819110 HVI LO 75 23 L400M GR M

GTIN 4013364436008, Číslo celního sazebníku (EU): 85446010, Váha brutto: 630.00 g/m, Balící jednotka: 400.00 m


Vyobrazení

Další informace

Vodič HVI (na kabelovém bubnu), barva šedá
Vodič HVI
vodič s vysokonapěťovou izolací
pro dodržení dostatečné vzdálenosti
vůči vodivým částem
podle ČSN EN 62305-3
ekvivalent dostatečné vzdálenosti s ≤ 75 cm (pro vzduch)
nebo s ≤ 150 cm (pro pevný materiál).
odolný vůči povětrnostním vlivům a UV záření
Materiál vnitřního vodiče: Cu
Materiál izolace: PE
Materiál pláště: PE
Barva vodiče: šedá ●
Průměr vodiče: 23 mm
Ochrana před dotykovým napětím: Ano (podle DS2094)
Norma: DIN IEC/TS 62561-8 (VDE V 0185-561-8)

Výrobek: DEHN
Typ: HVI LO 75 23 L400M GR M
Obj. č.: 819110
nebo rovnocenný.

Certifikáty

 

Technické informace

Materiál vnitřního vodiče Cu
Materiál izolace PE
Materiál pláště PE
Barva vodiče šedá
Průměr vodiče 23 mm
Norma DIN IEC/TS 62561-8 (VDE V 0185-561-8)

Produkt 819110 byl přidán na seznam.

K seznamu

Produkt 819110 byl přidán do nákupního košíku.

Obj. č. 819156 HVI LO 75 23 L100M GR E

GTIN 4013364531949, Číslo celního sazebníku (EU): 85446010, Váha brutto: 640.00 g/m, Balící jednotka: 100.00 m


Vyobrazení

Další informace

Vodič HVI (na kabelovém bubnu), barva šedá
Vodič HVI
vodič s vysokonapěťovou izolací
pro dodržení dostatečné vzdálenosti
vůči vodivým částem
podle ČSN EN 62305-3
ekvivalent dostatečné vzdálenosti s ≤ 75 cm (pro vzduch)
nebo s ≤ 150 cm (pro pevný materiál).
odolný vůči povětrnostním vlivům a UV záření
Materiál vnitřního vodiče: Cu
Materiál izolace: PE
Materiál pláště: PE
Barva vodiče: šedá ●
Průměr vodiče: 23 mm
Ochrana před dotykovým napětím: Ano (podle DS2094)
Norma: DIN IEC/TS 62561-8 (VDE V 0185-561-8)

Výrobek: DEHN
Typ: HVI LO 75 23 L100M GR E
Obj. č.: 819156
nebo rovnocenný.

 

Technické informace

Materiál vnitřního vodiče Cu
Materiál izolace PE
Materiál pláště PE
Barva vodiče šedá
Průměr vodiče 23 mm
Norma DIN IEC/TS 62561-8 (VDE V 0185-561-8)

Produkt 819156 byl přidán na seznam.

K seznamu

Produkt 819156 byl přidán do nákupního košíku.

Obj. č. 819158 HVI LO 75 23 L400M GR E

GTIN 4013364531956, Číslo celního sazebníku (EU): 85446010, Váha brutto: 662.00 g/m, Balící jednotka: 400.00 m


Vyobrazení

Další informace

Vodič HVI (na kabelovém bubnu), barva šedá
Vodič HVI
vodič s vysokonapěťovou izolací
pro dodržení dostatečné vzdálenosti
vůči vodivým částem
podle ČSN EN 62305-3
ekvivalent dostatečné vzdálenosti s ≤ 75 cm (pro vzduch)
nebo s ≤ 150 cm (pro pevný materiál).
odolný vůči povětrnostním vlivům a UV záření
Materiál vnitřního vodiče: Cu
Materiál izolace: PE
Materiál pláště: PE
Barva vodiče: šedá ●
Průměr vodiče: 23 mm
Ochrana před dotykovým napětím: Ano (podle DS2094)
Norma: DIN IEC/TS 62561-8 (VDE V 0185-561-8)

Výrobek: DEHN
Typ: HVI LO 75 23 L400M GR E
Obj. č.: 819158
nebo rovnocenný.

 

Technické informace

Materiál vnitřního vodiče Cu
Materiál izolace PE
Materiál pláště PE
Barva vodiče šedá
Průměr vodiče 23 mm
Norma DIN IEC/TS 62561-8 (VDE V 0185-561-8)

Produkt 819158 byl přidán na seznam.

K seznamu

Produkt 819158 byl přidán do nákupního košíku.


Vodič HVI long (v požadované délce)

Vodič HVI long je dodáván v požadované délce pro montáž na stavbě. Vodič je dodáván zabalený v balíku.
Požadovanou délku je třeba zadat při objednání (krok 0,5 m).

2 Produkty

Obj. č. 819131 HVI LO 75 20 L... SW M

GTIN 4013364223189, Číslo celního sazebníku (EU): 85446010, Váha brutto: 4.22 kg, Balící jednotka: 1.00 ks


Vyobrazení

Další informace

Vodič HVI (v požadované délce), barva černá
Vodič HVI
vodič s vysokonapěťovou izolací
pro dodržení dostatečné vzdálenosti
vůči vodivým částem
podle ČSN EN 62305-3
ekvivalent dostatečné vzdálenosti s ≤ 75 cm (pro vzduch)
nebo s ≤ 150 cm (pro pevný materiál).
odolný vůči povětrnostním vlivům a UV záření
v požadované délce 6,0 - 70,0 m
Materiál vnitřního vodiče: Cu
Materiál izolace: PE
Materiál pláště: PE
Barva vodiče: černá ●
Průměr vodiče: 20 mm
Minimální objednací délka: 6 m
Maximální objednací délka: 70 m
Norma: DIN IEC/TS 62561-8 (VDE V 0185-561-8)

Výrobek: DEHN
Typ: HVI LO 75 20 L... SW M
Obj. č.: 819131
nebo rovnocenný.

Certifikáty

 

Technické informace

Materiál vnitřního vodiče Cu
Materiál izolace PE
Materiál pláště PE
Barva vodiče černá ●
Průměr vodiče 20 mm
Minimální objednací délka 6 m
Maximální objednací délka 70 m
Norma DIN IEC/TS 62561-8 (VDE V 0185-561-8)

Produkt 819131 byl přidán na seznam.

K seznamu

Produkt 819131 byl přidán do nákupního košíku.

Obj. č. 819132 HVI LO 75 23 L... GR M

GTIN 4013364223172, Číslo celního sazebníku (EU): 85446010, Váha brutto: 4.95 kg, Balící jednotka: 1.00 ks


Vyobrazení

Další informace

Vodič HVI (v požadované délce), barva šedá
Vodič HVI
vodič s vysokonapěťovou izolací
pro dodržení dostatečné vzdálenosti
vůči vodivým částem
podle ČSN EN 62305-3
ekvivalent dostatečné vzdálenosti s ≤ 75 cm (pro vzduch)
nebo s ≤ 150 cm (pro pevný materiál).
odolný vůči povětrnostním vlivům a UV záření
v požadované délce 6,0 - 60,0 m
Materiál vnitřního vodiče: Cu
Materiál izolace: PE
Materiál pláště: PE
Barva vodiče: šedá ●
Průměr vodiče: 23 mm
Minimální objednací délka: 6 m
Maximální objednací délka: 60 m
Ochrana před dotykovým napětím: Ano (podle DS2094)
Norma: DIN IEC/TS 62561-8 (VDE V 0185-561-8)

Výrobek: DEHN
Typ: HVI LO 75 23 L... GR M
Obj. č.: 819132
nebo rovnocenný.

Certifikáty

 

Technické informace

Materiál vnitřního vodiče Cu
Materiál izolace PE
Materiál pláště PE
Barva vodiče šedá
Průměr vodiče 23 mm
Minimální objednací délka 6 m
Maximální objednací délka 60 m
Norma DIN IEC/TS 62561-8 (VDE V 0185-561-8)

Produkt 819132 byl přidán na seznam.

K seznamu

Produkt 819132 byl přidán do nákupního košíku.


back to top