Jímací stožáry s vodičem HVI

Maximální volná délka stožáru je 8,5 m.
Stožár musí být uchycen minimálně 3 držáky (obj. č. 105 345).

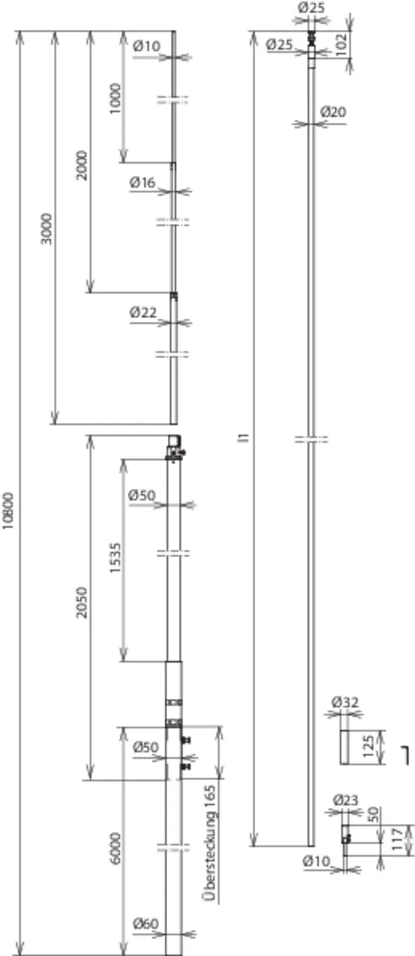
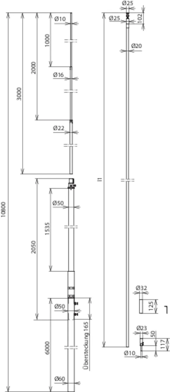
Dělený stožár je složen z těchto součástí:
- jímací tyč Al Ø 22 / 16 / 10 mm, délka 3000 mm
- podpůrná trubka GFK/Al Ø 50/60 mm, délka 2100 mm (přesazení 200 mm)
- stožár FeZn Ø 60 mm, délka 6000 mm se zajišťovacími šrouby M10 nerez
- vodič HVI pro uložení uvnitř
- přepravní délka je 6000 mm

Provedení s jedním vodičem HVI uloženým uvnitř. Délku vedení je třeba zadat při objednání (krok 0,5 m).

Nejvyšší celková délka vodiče HVI je 12,5 m pro třídu ochrany před bleskem LPL II.
Nejvyšší celková délka vodiče HVI je 18,5 m pro třídu ochrany před bleskem LPL III.

1 Produkt

Obj. č. 819730 FM 60 L11M IP HVI M L10M GFK AL STTZN

GTIN 4013364243477, Číslo celního sazebníku (EU): 85389099, Váha brutto: 53.54 kg, Balící jednotka: 1.00 ks

Staré provedení

Vyobrazení

Další informace

Jímací stožár s vodičem HVI
Jímací stožár s vodičem HVI
vodič s vysokonapěťovou izolací
pro dodržení dostatečné vzdálenosti vůči
vodivým částem podle ČSN EN 62305-3
Speciálně pro použití např. ve fermentorech nebo
v bioplynových stanicích
podle třídy II systému ochrany před bleskem.
Jímací stožáry jsou dimenzovány podle Eurocode 1
(ČSN EN 1991-1-4 + ČSN EN 1991-1-4/NA).
Stožár je složen z těchto součástí:
- jímací tyč Al Ø 22 / 16 / 10 mm, délka 3000 mm
- podpůrná trubka GFK/Al Ø 50/60 mm
- stožár FeZn Ø 60 mm
plus
tři nastavitelné držáky (obj. č. 105 345)
maximální volná délka stožáru je 8,5 m
Provedení s jedním vodičem HVI uloženým uvnitř,
minimální objednací délka 10 m.
Jiné požadované délky vodiče je třeba zadat při objednání
Nejvyšší celková délka vodiče HVI (LPS II) je 12,5 m.
Nejvyšší celková délka vodiče HVI (LPS III) je 18,5 m.
Celková výška: 10800 mm
Délka jímací tyče: 3000 mm
Délka podpůrné trubky: 2100 mm
Délka stožáru: 6000 mm
Průměr vodiče: 20 mm
Barva vodiče: černá ●
Materiál vodiče: Cu
Minimální objednací délka: 10 m
Max. rychlost nárazového větru: (max. volná délka 8500 mm, 1x HVI vnitřní) 156 km/h
Norma: DIN IEC/TS 62561-8 (VDE V 0185-561-8)

Výrobek: DEHN
Typ: FM 60 L11M IP HVI M L10M GFK AL STTZN
Obj. č.: 819730
nebo rovnocenný.

Certifikáty

 

Technické informace

Celková výška 10800 mm
Délka jímací tyče 3000 mm
Délka podpůrné trubky 2100 mm
Délka stožáru 6000 mm
Barva vodiče černá ●
Minimální objednací délka 10 m
Norma DIN IEC/TS 62561-8 (VDE V 0185-561-8)

Produkt 819730 byl přidán na seznam.

K seznamu

Produkt 819730 byl přidán do nákupního košíku.


back to top