Sestavy DEHNiso-Combi

Součásti pro oddálené (izolované) jímací zařízení.Slouží k ochraně větších střešních nástaveb, např. klimatizačních a chladírenských jednotek atd.Pro dodržení dostatečné vzdálenosti vůči elektrickým a vodivým částem podle ČSN EN 62305-3.Trubky a distanční držáky jsou z umělé hmoty vyztužené skleněnými vlákny (glasfaserverstärkte Kunststoff GFK), s UV odolností, barva světle šedá, teplota prostředí -50 až +100 °C.
  • Kompletní sestava připravená pro montáž
  • Nízká vlastní hmotnost
  • Stabilní provedení celé sestavy
  • Upevňovací objímky s technikou jednoho šroubu
  • Široké pole připravených otvorů pro různé způsoby montáže
Při stanovení dostatečné vzdálenosti (délky distančních tyčí) je třeba zadat koeficient km = 0,7.1 m distanční tyče odpovídá ekvivalentu dostatečné vzdálenosti pro vzduch 0,7 m.Maximální volná délka se vztahuje na vzdálenost mezi vrcholem podpůrné trubky a horním držákem (upevňovacím bodem).Při propojení vrcholů podpůrných trubek hliníkovým lanem (kat. č. 840 050) je třeba dodržet jejich max. rozestup 10 m (dodržet prověšení lana).

Jednodílná o celkové výšce 4200 mm

Sestava obsahuje:
1x jímací tyč nerez, l = 1000 mm (obj. č. 105 071)
1x podpůrná trubka GFK/Al, l = 3200 mm (obj. č. 105 300)
2x úchyt na zeď nerez (obj. č. 105 340)
1x izolační vzpěra GFK/Al, l = 1030 mm (obj. č. 106 331)

1 Produkt

Obj. č. 105440 DICS WB D50.10 4.2M GFK AL V2A

GTIN 4013364099692, Číslo celního sazebníku (EU): 85389099, Váha brutto: 7.64 kg, Balící jednotka: 1.00 ks


Vyobrazení

Další informace

Sestavy DEHNiso-Combi, celková délka 4200 mm, GFK/Al
Sestavy DEHNiso-Combi
Komponenty pro oddálená (izolovaná) jímací zařízení
k ochraně větších střešních nástaveb, např. klimatizačních jednotek,
chladírenských jednotek atd.
K dodržení dostatečné vzdálenosti vůči elektricky
vodivým částem podle DIN EN 62305-3 (VDE 0185-305-3)
Izolační část z umělé hmoty vyztužené skelnými vlákny (GFK)
Trubka Ø 50 mm a distanční vzpěra Ø16 mm
koeficient materiálu km = 0,7
Barva světle šedá, s UV odolností, jednodílné provedení,
sestavy DEHNiso-Combi, jsou dimenzovány podle
Eurokódu 1 (DIN EN 1991-1-4 + DIN EN 1991-1-4/NA),
sestává z:
1x jímací hrot hliník, délka = 1000 mm (obj. č. 105 071)
1x podpůrná trubka GFK/Al, délka = 3200 mm (obj. č. 105 300)
2x úchyt na zeď nerez (V2A) (obj. č. 105 340)
1x distanční držák GFK/Al, délka = 1030 mm (obj. č. 106 331)
Celková délka: 4200 mm
Počet úchytů na zeď: 2
Délka podpůrné trubky: 3200 mm
Max. rychlost nárazového větru: (montáž na stěnu s max. volnou délkou 3500 mm, Ø8 mm) 232 km/h
Materiál podpůrné trubky/vzpěry: GFK/Al
Norma: DIN IEC/TS 62561-8 (VDE V 0185-561-8)

Výrobek: DEHN
Typ: DICS WB D50.10 4.2M GFK AL V2A
Obj. č.: 105440
nebo rovnocenný.

Certifikáty

 

Technické informace

Celková délka 4200 mm
Počet úchytů na zeď 2
Délka podpůrné trubky 3200 mm
Max. rychlost nárazového větru (montáž na stěnu s max. volnou délkou 3500 mm, Ø8 mm) 232 km/h
Materiál podpůrné trubky/vzpěry GFK/ Al
Norma DIN IEC/TS 62561-8 (VDE V 0185-561-8)

Produkt 105440 byl přidán na seznam.

K seznamu

Produkt 105440 byl přidán do nákupního košíku.


Jednodílná o celkové výšce 5700 mm

Sestava obsahuje:
1x jímací tyč nerez, l = 1000 mm (obj. č. 105 071)
1x podpůrná trubka GFK/Al, l = 4700 mm (obj. č. 105 301)
3x úchyt na zeď nerez (obj. č. 105 340)
2x izolační vzpěra GFK/Al, l = 1030 mm (obj. č. 106 331)

1 Produkt

Obj. č. 105455 DICS WB D50 10 5700 GFK AL V2A

GTIN 4013364099715, Číslo celního sazebníku (EU): 85389099, Váha brutto: 11.45 kg, Balící jednotka: 1.00 ks


Vyobrazení

Další informace

Sestavy DEHNiso-Combi, celková délka 5700 mm, GFK/Al
Sestavy DEHNiso-Combi
Komponenty pro oddálená (izolovaná) jímací zařízení
k ochraně větších střešních nástaveb, např. klimatizačních jednotek,
chladírenských jednotek atd.
K dodržení dostatečné vzdálenosti vůči elektricky
vodivým částem podle DIN EN 62305-3 (VDE 0185-305-3)
Izolační část z umělé hmoty vyztužené skelnými vlákny (GFK)
Trubka Ø 50 mm a distanční vzpěra Ø16 mm
koeficient materiálu km = 0,7
Barva světle šedá, s UV odolností, jednodílné provedení,
sestavy DEHNiso-Combi, jsou dimenzovány podle
Eurokódu 1 (DIN EN 1991-1-4 + DIN EN 1991-1-4/NA),
sestává z:
1x jímací hrot hliník, délka = 1000 mm (obj. č. 105 071)
1x podpůrná trubka GFK/Al, délka = 4700 mm (obj. č. 105 301)
3x úchyt na zeď nerez (V2A) (obj. č. 105 340)
2x distanční držák GFK/Al, délka = 1030 mm (obj. č. 106 331)
Celková délka: 5700 mm
Počet úchytů na zeď: 3
Délka podpůrné trubky: 4700 mm
Max. rychlost nárazového větru: (montáž na stěnu s max. volnou délkou 4000 mm, Ø 8 mm) 206 km/h
Materiál podpůrné trubky/vzpěry: GFK/Al
Norma: DIN IEC/TS 62561-8 (VDE V 0185-561-8)

Výrobek: DEHN
Typ: DICS WB D50 10 5700 GFK AL V2A
Obj. č.: 105455
nebo rovnocenný.

Certifikáty

 

Technické informace

Celková délka 5700 mm
Počet úchytů na zeď 3
Délka podpůrné trubky 4700 mm
Max. rychlost nárazového větru (montáž na stěnu s max. volnou délkou 4000 mm, Ø 8 mm) 206 km/h
Materiál podpůrné trubky/vzpěry GFK/ Al
Norma DIN IEC/TS 62561-8 (VDE V 0185-561-8)

Produkt 105455 byl přidán na seznam.

K seznamu

Produkt 105455 byl přidán do nákupního košíku.


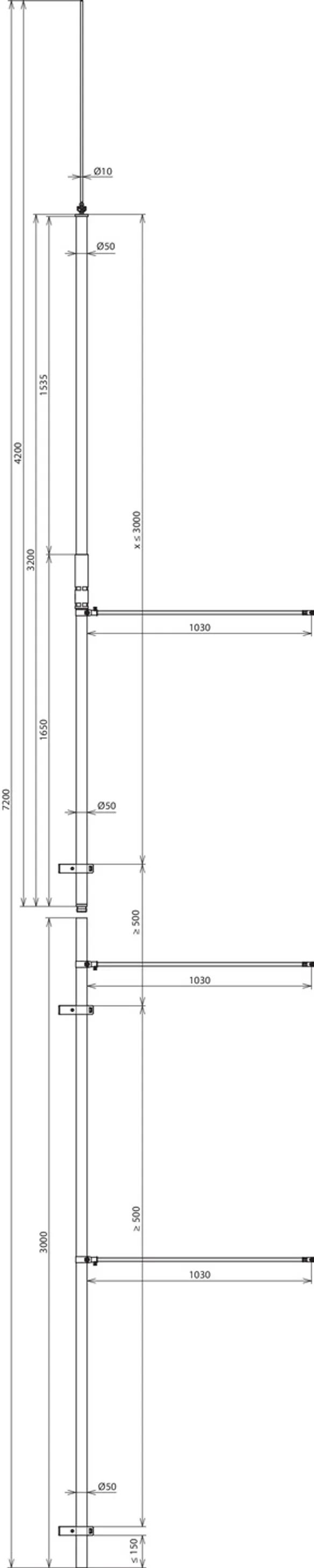
Dvoudílná o celkové výšce 7200 mm

(Přepravní délka 3200 mm)
Sestava obsahuje:
1x jímací tyč nerez, l = 1000 mm (obj. č. 105 071)
1x podpůrná trubka GFK/Al, l = 6200 mm (obj. č. 105 302)
3x úchyt na zeď nerez (obj. č. 105 340)
3x izolační vzpěra GFK/Al, L = 1030 mm (obj. č. 106 331)

1 Produkt

Obj. č. 105470 DICS WB D50 10 7200 GFK AL V2A

GTIN 4013364100138, Číslo celního sazebníku (EU): 85389099, Váha brutto: 14.65 kg, Balící jednotka: 1.00 ks


Vyobrazení

Další informace

Sestavy DEHNiso-Combi, dvoudílné, celková délka 7200 mm, GFK/Al
Sestavy DEHNiso-Combi
Komponenty pro oddálená (izolovaná) jímací zařízení
k ochraně větších střešních nástaveb, např. klimatizačních jednotek,
chladírenských jednotek atd.
K dodržení dostatečné vzdálenosti vůči elektricky
vodivým částem podle DIN EN 62305-3 (VDE 0185-305-3)
Izolační část z umělé hmoty vyztužené skelnými vlákny (GFK)
Trubka Ø 50 mm a distanční vzpěra Ø16 mm
koeficient materiálu km = 0,7
barva světle šedá, odolnost vůči UV záření
dvoudílná (přepravní délka 3200 mm)
sestavy DEHNiso-Combi, jsou dimenzovány podle
Eurokódu 1 (DIN EN 1991-1-4 + DIN EN 1991-1-4/NA),
sestává z:
1x jímací hrot hliník, délka = 1000 mm (obj. č. 105 071)
1x podpůrná trubka GFK/Al, délka = 6200 mm (obj. č. 105 302)
3x úchyt na zeď nerez (V2A) (obj. č. 105 340)
3x distanční držák GFK/Al, délka = 1030 mm (obj. č. 106 331)
Celková délka: 7200 mm
Počet úchytů na zeď: 3
Délka podpůrné trubky: 6200 mm
Max. rychlost nárazového větru: (montáž na stěnu s max. volnou délkou 4000 mm, Ø 8 mm) 206 km/h
Materiál podpůrné trubky/vzpěry: GFK/Al
Norma: DIN IEC/TS 62561-8 (VDE V 0185-561-8)

Výrobek: DEHN
Typ: DICS WB D50 10 7200 GFK AL V2A
Obj. č.: 105470
nebo rovnocenný.

Certifikáty

 

Technické informace

Celková délka 7200 mm
Počet úchytů na zeď 3
Délka podpůrné trubky 6200 mm
Max. rychlost nárazového větru (montáž na stěnu s max. volnou délkou 4000 mm, Ø 8 mm) 206 km/h
Materiál podpůrné trubky/vzpěry GFK/ Al
Norma DIN IEC/TS 62561-8 (VDE V 0185-561-8)

Produkt 105470 byl přidán na seznam.

K seznamu

Produkt 105470 byl přidán do nákupního košíku.


back to top